/home/homedecor/domains/www1.homedecorthai.com/public_html/templates/default/ext/ui/article_detail.tpl.php แบบบ้าน 2 ชั้น ขนาดเล็ก กระทัดรัด
 
 
    
   
     
     
   
 

แบบบ้าน 2 ชั้น ขนาดเล็ก กระทัดรัด

13 ก.ย. 2555

แบบบ้าน 2 ชั้น ขนาดเล็ก กระทัดรัด
 
          เป็นแบบบ้านขนาดเล็ก 2 ชั้นที่มีฟังก์ชั่นการตกแต่งอย่างครบครัน และเป็นบ้านที่อยู่ท่ามกลางธรรมชาติตกแต่งภายในไว้อย่างกระทัดรัด บ้าน 2 ชั้น นี้ถูกสร้างขึ้นในพื้นที่เพียง 320 ตารางฟุต ถูกสร้างด้วยสังกะสีเก่าๆ ที่ขึ้นสนิมแล้ว การตกแต่งภายในเป็นแบบเรียบง่ายและมีฟังก์ชั่นการใช้งานที่ครบครัน 
 
แบบบ้าน 2 ชั้น
 
แบบบ้าน 2 ชั้น

บ้านหลังนี้เป็นบ้านที่นำสังกะสีเก่าๆ มาทำเป็นฝาผนังบ้าน ซึ่งถ้ามองจากมุมนี้แล้วจะเป็นเหมือนบ้านไม้ที่มีสไตล์การออกแบบได้อย่างโมเดิร์นทีเดียวแต่จริงๆแล้วเป็นบ้านสังกะสีที่ขึ้นสนิมเก่า ๆ ซึ่งทำให้บ้านหลังเล็กกระทัดรัดหลังนี้ดูมีสไตล์มากทีเดียว ด้วยการออกแบบบ้านที่กระทัดรัดหลังนี้แล้วยังทำหลังคายื้นออกมาเพื่อให้เป็นพื้นที่ัพบปะสังสรรค์ระหว่างเพื่อนๆ ที่มาบ้านได้อย่างลงตัวทีเดียว เพราะมีเคาน์เตอร์ครัวทีกระทัดรัดอยู่ด้านในซึ่งมีประตูเหล็กที่สามารถเปิดปิดได้อย่งสะดวกสบาย
 
แบบบ้าน 2 ชั้น เคาน์เตอร์ครัว
 
บันไดเหล็ก
 
บ้าน 2 ชั้น
 
หน้าต่าง วงกบหน้าต่าง
 
บ้าน 2 ชั้น แบบบ้าน 2 ชั้น
 
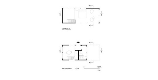
แปลนบ้าน
 
แปลนบ้าน
 

 


แหล่งที่มา : inthralld.com
จำนวนคนอ่าน : 23548 คน

บทความที่ใกล้เคียงกัน :

 

ไอเดียมาใหม่ใน"ร้านจำหน่าย หินขัด"

ร้านจำหน่าย หินขัด

10 ห้องนั่งเล่นสุดเริดสไตล์โมเดิร์น!!

15 ต.ค. 2557
10 ห้องนั่งเล่นสุดเริดสไตล์โมเดิร์น!!

วันนี้จัดหนักให้กับชาวเจ้าของบ้านที่ต้องการแต่งห้องนั่งเล่นด้วย 10 ไอเดียห้องนั่งเล่นสุดเริด ใครที่มีโครงการที่จะแต่งห้องนั่งเล่นใหม่ หรือว่ากำลังแต่งห้องนั่งเล่นอยู่ตอนนี้แล้วไอเดียเกิดตันขึ้นมาละก็ นี่เลยกับหลากไอเดียแต่งห้องนั่งเล่นสวยๆ จัดไปแบบนี่นิดแบบนั่นหน่อย ก็เจิดเป็นสไตล์เราได้ สวยเริดอย่าได้แคร์     Read more

การเตรียมห้องใหม่กับ(เจ้าตัวเล็ก)

9 ต.ค. 2557
การเตรียมห้องใหม่กับ(เจ้าตัวเล็ก)

การจัดเตรียมห้องให้เหมาะสม สะดวกสบายและแสงสว่างในห้องลูกน้อยควรเลือกใช้ดวงไฟแบบไฟหรี่ เด็กเล็กมีปฎิกริยาตอบสนองต่อสีเข้มและรูปร่างรูปทรง ควรเลือกโทนสีพื้นห้องเป็นสีอ่อนๆ และเพิ่มสีสันสดใสรูปทรงเข้าไป เพราะจะง่ายต่อการเปลี่ยนแปลงของเด็ก    Read more

แบบบันไดสไลเดอร์ไม่ธรรมดาจริงๆ

8 ต.ค. 2557
แบบบันไดสไลเดอร์ไม่ธรรมดาจริงๆ

สำหรับใครที่กำลังอยากได้ไอเดียแบบไม่ธรรมดาสำหรับบันไดในบ้าน ลองมาดูไอเดียนี้ก่อนคะ ซึ่งเป็นแบบบันไดบ้านของอพาร์ทเมนต์สองชั้นในนิวยอร์ก ออกแบบโดย Turett Collaborative ที่ว่าไม่ธรรมดานั้น ก็เพราะเป็นบันได้ในรูปแบบสไลเดอร์ทำจากสแตนเลส เป็นบันได้ที่เราสามารถ สามารถสไลด์ลงมาจากชั้นสองได้เลย ไม่ต้องเดินเหมือนบันไดธรรมดาๆ ดูแล้วน่าจะสะดวกและน่าสนุกไม่น้อยเลยนะคะ ถ้าบ้านใครมีเด็กๆรับรองต้องชอบแน่ๆเลยละค้า!    Read more

แบบบ้านโมเดิร์น พื้นที่แคบๆ ที่แสนจะลงตัว

29 ก.ย. 2557
แบบบ้านโมเดิร์น พื้นที่แคบๆ ที่แสนจะลงตัว

เป็นการออกแบบบ้านในพื้นที่แคบๆ ได้อย่างลงตัวมาก เพราะบ้านที่ปลูกบนพื้นที่แคบๆ นี้นั้นเหมาะกับพื้นที่ในเมืองที่มีพื้นที่ที่แสนจะจำกัดมาก เนื่องด้วยเป็นพื้นที่ที่มีราคาแพงและเป็นที่ต้องการของใครหลายๆ คน วันนี้ homedecorthai จึงขอแนะนำการออกแบบบ้านโมเดิร์น บนพื้นที่แคบๆ กัน    Read more

แต่งห้องครัวสไตล์ญี่ปุ่น

11 ก.ย. 2557
แต่งห้องครัวสไตล์ญี่ปุ่น

ห้องครัวโมเดิร์นญี่ปุ่นสไตล์ ออกแบบตกแต่งได้สวยงาม หรู คลาสสิก มากๆค่ะ    Read more
  1   2 3 4 Next
Topics 1 - 5 of 326

ชมไอเดีย "ร้านจำหน่าย หินขัด" ทั้งหมด