/home/homedecor/domains/www1.homedecorthai.com/public_html/templates/default/ext/ui/article_detail.tpl.php บ้านสไตล์รีสอร์ท หลังเล็ก แบบพกพา
 
 
    
   
     
     
   
 

บ้านสไตล์รีสอร์ท หลังเล็ก แบบพกพา

บ้านสไตล์รีสอร์ท

26 ส.ค. 2559
บ้านสไตล์รีสอร์ท หลังเล็ก แบบพกพา
          ในอดีตนั้นความหรูหราของรีสอร์ทกับกระท่อมนั้นเป็นนิยามที่แตกต่างกันโดยสิ้นเชิง แต่ปัจจุปันนี้ได้มีวิวัฒนาการที่รวดเร็วมากไม่ว่าจะเป็นสิ่งปลูกสร้างอาคารบ้านเรือนต่างๆ ก็ได้มีการพัฒนาให้มีศักยภาพมากขึ้นและมีสไตล์แบบร่วมสมัยที่ผสมผสานกันได้อย่างลงตัว ปัจจุบันนี้บางรีสอร์ทก็ใช้กระท่อมตกแต่งเป็นที่พักไว้ให้บริการกับลูกค้า ซึ่งบ้านไม้สไตล์รีสอร์ทนี้ สามารถเคลื่อนย้ายได้ เป็นผลงานการออกแบบของ Crosson Clarke Carnachan ใช้พื้นที่ในการสร้างบ้านเพียง 49 ตารางเมตร มีพื้นที่ใช้สอยอย่างครบครัน และยังตกแต่งประตูกระจกขนาดใหญ่ที่ทำให้สามารถมองเห็นวิวธรรมชาติได้อย่างชัดเจน ภายนอกและภายในถูกตกแต่งด้วยไม้ ให้บรรยากาศแสนอบอุ่นได้ดีทีเดียว
บ้านสไตล์รีสอร์ท
บ้านไม้
บ้านไม้
ถังเก็บน้ำสแตนเลส
บ้านไม้
บ้านไม้ ถังเก็บน้ำสแตนเลส
ถังเก็บน้ำสแตนเลส
บ้านไม้
ห้องนั่งเล่น พรมขนสัตว์
ห้องนั่งเล่น
ชั้นวางของติดผนัง
ไม้
เตียงนอน
ผ้าปูที่นอน บันไดไม้
ฝักบัว
ก๊อกน้ำ
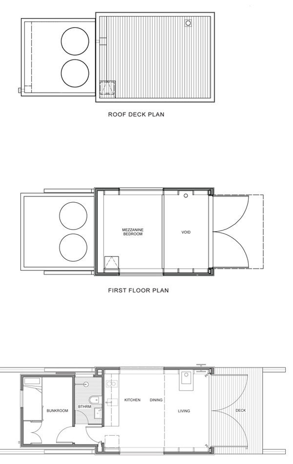
แปลนบ้าน
แปลนบ้าน
ติดตามข้อมูลดีๆ จาก Homedecorthai ได้ที่
www.homedecorthai.com
FB: www.facebook.com/HomeDecorThaiOfficial
IG:homedecorthai (www.instagram.com/homedecorthai)

 


แหล่งที่มา : www.zeutch.com
จำนวนคนอ่าน : 4858 คน

บทความที่ใกล้เคียงกัน : บ้านสไตล์รีสอร์ท

 

ไอเดียมาใหม่ใน"Home Idea"

Home Idea

ตกแต่งดีมีแต่เฮง รวมไอเท็มขึ้นบ้านใหม่เสริมมงคลอยู่แล้วเฮงสุดๆ!

7 ธ.ค. 2561
ตกแต่งดีมีแต่เฮง รวมไอเท็มขึ้นบ้านใหม่เสริมมงคลอยู่แล้วเฮงสุดๆ!

จะมีอะไรมีความสุขมากกว่าการได้ขึ้นบ้านใหม่ด้วยวันดีๆ และสำหรับใครที่ได้ฤกษ์งามยามดีมีโอกาสได้ขึ้นบ้านใหม่ทั้งทีต้องอย่าลืมไอเท็มดีๆ ที่จะช่วยเสริมสิริมงคลให้บ้านใหม่ของคุณอยู่แล้วดี อยู่แล้วเฮงด้วยนะ!     Read more

รีโนเวทบ้านเก่า แบบผสมผสาน สวยงามลงตัว

2 มี.ค. 2561
รีโนเวทบ้านเก่า แบบผสมผสาน สวยงามลงตัว

รีโนเวทบ้านเก่า แบบผสมผสาน สวยงามลงตัว วันนี้พาไปชม ไอเดียการรีโนเวทบ้านเก่า แบบครึ่งไม้ครึ่งปูนแบบผสมผสานจาก Facebook ปลาทูเค็ม รีโนเวทโฮม ใครที่มีโครงการที่จะรีโนเวทบ้าน แต่ยังคิดไม่ออกว่าจะทำแนวไหนดี ลองเข้าไปชมไอเดียกันก่อนได้เลย ครับ    Read more

บ้านไม้ชั้นเดียว ตกแต่งแบบเรียบง่าย

26 ธ.ค. 2560
บ้านไม้ชั้นเดียว ตกแต่งแบบเรียบง่าย

บ้านไม้ชั้นเดียว ออกแบบตกแต่งแบบเรียบง่าย หลังคาหน้าจั่วและกระจกบนใหญ่ พื้นที่การใช้งานภายในบ้านสะดวก ครบครันมีทั้งห้องครัว ห้องรับแขก ห้องทานอาหาร ห้องนังเล่น ซึ่งทั้งหมดเป็นพื้นที่เชื่อมต่อกัน การตกแต่งภายในเป็นแบบเรียบง่ายดูอบอุ่น    Read more

พาไปชม บ้านแห่งต้นไม้ ผสมผสานธรรมชาติเข้ากับพื้นที่อยู่อาศัยในสไตล์โมเดิร์นที่เรียบง่าย

13 ธ.ค. 2560
พาไปชม บ้านแห่งต้นไม้ ผสมผสานธรรมชาติเข้ากับพื้นที่อยู่อาศัยในสไตล์โมเดิร์นที่เรียบง่าย

    Read more

สวนเล็กๆ ก็สวยได้

20 ก.ย. 2560
สวนเล็กๆ ก็สวยได้

สวนเล็กๆ ก็สวยได้ ขนาดนั้นบางทีก็ไม่สำคัญเสมอไป ขึ้นอยู่กับความพอดี พอใจ ของแต่ละคน อย่าเพิ่งคิดไปไกลครับ วันนี้เราเอาตัวอย่างการจัดสวนแบบเล็กๆ น่ารักๆ มาฝากกันครับ    Read more
  1   2 3 4 Next
Topics 1 - 5 of 126

ชมไอเดีย "Home Idea" ทั้งหมด