/home/homedecor/domains/www1.homedecorthai.com/public_html/templates/default/ext/ui/article_detail.tpl.php เติมความโมเดิร์น ให้กับบ้านสไตล์วิคตอเรีย
 
 
    
   
     
     
   
 

เติมความโมเดิร์น ให้กับบ้านสไตล์วิคตอเรีย

ไอเดียการตกแต่ง

24 ก.ค. 2560
เติมความโมเดิร์น ให้กับบ้านสไตล์วิคตอเรีย เป็นการออกแบบตกแต่งเพิ่มเติมของบ้านแบบวิคตอเรียเพื่อใส่ความโมเดิร์นให้กับบ้าน ส่วนที่ตกแต่งต่อเติมนั้นเป็นสีเทาเข้ม พื้นที่ใช้สอยภายในบ้านเพิ่มขึ้น ทั้งในห้องนั่งเล่น ห้องรับประทานอาหาร ห้องครัว พื้นบ้านปูด้วยไม้โอ้คทั้งหลัง ส่วนพื้นระเบียงนั้นถูกปูด้วยหินปูน ด้านหน้าบ้านตกแต่งด้วยสวนสีเขียวขนาดกำลังพอดี ผลงานสร้างสรรของ Walker Bushe Architects
Images:freshome.com
ต่อเตืมบ้านสไตล์วิคตอเรีย
บ้านสไตล์วิคตอเรียแบบโมเดิร์น
สวนหน้าบ้าน
สวนขนาดเล็ก
ตกแต่งห้องครัว
ไอเดียตกแต่งห้องน้ำ
ต่อเติมบ้าน
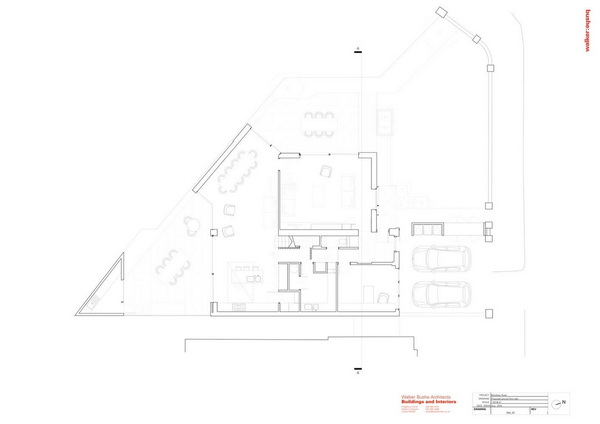
แปลนบ้าน
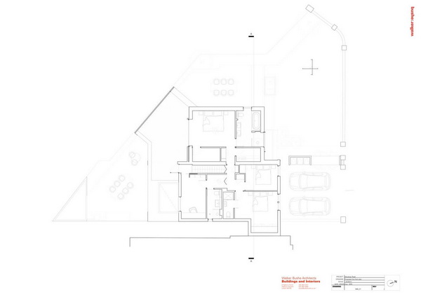
แบบแปลนบ้าน
ติดตามข้อมูลดีๆ จาก Homedecorthai ได้ที่
www.homedecorthai.com
FB: www.facebook.com/HomeDecorThaiOfficial
IG:homedecorthai (www.instagram.com/homedecorthai)

แหล่งที่มา : freshome.com
จำนวนคนอ่าน : 5166 คน

บทความที่ใกล้เคียงกัน : ไอเดียการตกแต่ง

 

ไอเดียมาใหม่ใน"แบบบ้าน"

แบบบ้าน

บ้านไม้ชั้นเดียว ตกแต่งแบบเรียบง่าย

26 ธ.ค. 2560
บ้านไม้ชั้นเดียว ตกแต่งแบบเรียบง่าย

บ้านไม้ชั้นเดียว ออกแบบตกแต่งแบบเรียบง่าย หลังคาหน้าจั่วและกระจกบนใหญ่ พื้นที่การใช้งานภายในบ้านสะดวก ครบครันมีทั้งห้องครัว ห้องรับแขก ห้องทานอาหาร ห้องนังเล่น ซึ่งทั้งหมดเป็นพื้นที่เชื่อมต่อกัน การตกแต่งภายในเป็นแบบเรียบง่ายดูอบอุ่น    Read more

พาไปชม บ้านแห่งต้นไม้ ผสมผสานธรรมชาติเข้ากับพื้นที่อยู่อาศัยในสไตล์โมเดิร์นที่เรียบง่าย

13 ธ.ค. 2560
พาไปชม บ้านแห่งต้นไม้ ผสมผสานธรรมชาติเข้ากับพื้นที่อยู่อาศัยในสไตล์โมเดิร์นที่เรียบง่าย

    Read more

สวนเล็กๆ ก็สวยได้

20 ก.ย. 2560
สวนเล็กๆ ก็สวยได้

สวนเล็กๆ ก็สวยได้ ขนาดนั้นบางทีก็ไม่สำคัญเสมอไป ขึ้นอยู่กับความพอดี พอใจ ของแต่ละคน อย่าเพิ่งคิดไปไกลครับ วันนี้เราเอาตัวอย่างการจัดสวนแบบเล็กๆ น่ารักๆ มาฝากกันครับ    Read more

แบบบ้านสองชั้น สไตล์โมเดิร์น

20 ก.ย. 2560
แบบบ้านสองชั้น สไตล์โมเดิร์น

เป็นการออกแบบที่ดูสวยหรูเรียบง่าย ร่วมสมัย ภายตกแต่งผนังโดยการก่ออิฐ เน้นโชว์พื้นผิว พื้นที่รับประทานอาหารเชื่อมต่อกับห้องครัวและห้องนั่งเล่น เปิดโล่งถึงกันหมด ทำให้ดูกว้างขวาง และยังมีสระว่ายน้ำที่ล้อมรอบด้วยสีเขียวของสวนเพื่อเพิ่มความสดชื่นให้กับบ้านอีกด้วย    Read more

บ้านสไตล์วิลล่า

14 ก.ย. 2560
บ้านสไตล์วิลล่า

บ้านสไตล์วิลล่า ในแคลิฟอร์เนีย ออกแบบโดย Turnbull Griffin Haesloop เป็นความลงตัวที่สมบูรณ์แบบระหว่างในร่มและกลางแจ้ง ที่ออกแบบได้กลมกลืนกับบรรยากาศโดยรอบ พื้นท่่กลางแจ้งมีสระว่ายน้ำและสระน้ำตามธรรมชาติ ห้องนอน ห้องครัว และพื้นที่ต่างๆ อยู่ภายใต้หลังคาแบบยกลอย    Read more
  1   2 3 4 Next
Topics 1 - 5 of 105

ชมไอเดีย "แบบบ้าน" ทั้งหมด