/home/homedecor/domains/www1.homedecorthai.com/public_html/templates/default/ext/ui/article_detail.tpl.php บ้านไม้ริมทะเลในนอร์เวย์
 
 
    
   
     
     
   
 

บ้านไม้หลังเล็กริมทะเลในนอร์เวย์

แบบบ้านไม้|แบบบ้านหลังเล็ก

7 พ.ย. 2559
บ้านไม้ริมทะเลในนอร์เวย์
บ้านไม้สไตล์ร่วมสมัย ตั้งอยู่ตามแนวชายฝั่งทะเล ภายนอกตกแต่งด้วยไม้สีดำรอบๆตัวบ้าน ภายในห้องน้ำมีหน้าต่างบานใหญ่ไว้ให้ชมวิว พร้อมอ่างอาบน้ำ ภายในตกแต่งด้วยไม้เช่นกัน พื้นที่การใช้งานมีครบครัน ห้องนอน ห้องครัว พื้นที่นั่งเล่น บนหลังคามีการปลูกหญ้าไว้เพื่อลดความร้อนจากแสงแดดได้ดี ผลงานของ  Asante Architecture & Design
Images:freshome.com
แบบบ้านไม้
ห้องน้ำ
แบบบ้านหลังเล็ก
แบบบ้านไม้
แบบห้องครัว
แบบห้องนั่งเล่น
ตกแต่งห้องรับแขก
ไอเดียตกแต่งบ้าน
ห้องนอนชั้นบน
พื้นที่รับประทานอาหาร
แบบบ้านไม้
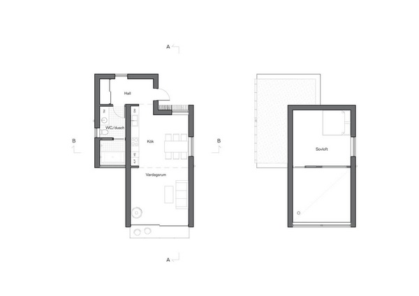
แปลนบ้าน
ติดตามข้อมูลดีๆ จาก Homedecorthai ได้ที่
www.homedecorthai.com
FB: www.facebook.com/HomeDecorThaiOfficial
IG:homedecorthai (www.instagram.com/homedecorthai)

 


แหล่งที่มา : freshome.com
จำนวนคนอ่าน : 5685 คน

บทความที่ใกล้เคียงกัน : แบบบ้านไม้, แบบบ้านหลังเล็ก

 

ไอเดียมาใหม่ใน"แบบบ้าน"

แบบบ้าน

บ้านไม้ชั้นเดียว ตกแต่งแบบเรียบง่าย

26 ธ.ค. 2560
บ้านไม้ชั้นเดียว ตกแต่งแบบเรียบง่าย

บ้านไม้ชั้นเดียว ออกแบบตกแต่งแบบเรียบง่าย หลังคาหน้าจั่วและกระจกบนใหญ่ พื้นที่การใช้งานภายในบ้านสะดวก ครบครันมีทั้งห้องครัว ห้องรับแขก ห้องทานอาหาร ห้องนังเล่น ซึ่งทั้งหมดเป็นพื้นที่เชื่อมต่อกัน การตกแต่งภายในเป็นแบบเรียบง่ายดูอบอุ่น    Read more

พาไปชม บ้านแห่งต้นไม้ ผสมผสานธรรมชาติเข้ากับพื้นที่อยู่อาศัยในสไตล์โมเดิร์นที่เรียบง่าย

13 ธ.ค. 2560
พาไปชม บ้านแห่งต้นไม้ ผสมผสานธรรมชาติเข้ากับพื้นที่อยู่อาศัยในสไตล์โมเดิร์นที่เรียบง่าย

    Read more

สวนเล็กๆ ก็สวยได้

20 ก.ย. 2560
สวนเล็กๆ ก็สวยได้

สวนเล็กๆ ก็สวยได้ ขนาดนั้นบางทีก็ไม่สำคัญเสมอไป ขึ้นอยู่กับความพอดี พอใจ ของแต่ละคน อย่าเพิ่งคิดไปไกลครับ วันนี้เราเอาตัวอย่างการจัดสวนแบบเล็กๆ น่ารักๆ มาฝากกันครับ    Read more

แบบบ้านสองชั้น สไตล์โมเดิร์น

20 ก.ย. 2560
แบบบ้านสองชั้น สไตล์โมเดิร์น

เป็นการออกแบบที่ดูสวยหรูเรียบง่าย ร่วมสมัย ภายตกแต่งผนังโดยการก่ออิฐ เน้นโชว์พื้นผิว พื้นที่รับประทานอาหารเชื่อมต่อกับห้องครัวและห้องนั่งเล่น เปิดโล่งถึงกันหมด ทำให้ดูกว้างขวาง และยังมีสระว่ายน้ำที่ล้อมรอบด้วยสีเขียวของสวนเพื่อเพิ่มความสดชื่นให้กับบ้านอีกด้วย    Read more

บ้านสไตล์วิลล่า

14 ก.ย. 2560
บ้านสไตล์วิลล่า

บ้านสไตล์วิลล่า ในแคลิฟอร์เนีย ออกแบบโดย Turnbull Griffin Haesloop เป็นความลงตัวที่สมบูรณ์แบบระหว่างในร่มและกลางแจ้ง ที่ออกแบบได้กลมกลืนกับบรรยากาศโดยรอบ พื้นท่่กลางแจ้งมีสระว่ายน้ำและสระน้ำตามธรรมชาติ ห้องนอน ห้องครัว และพื้นที่ต่างๆ อยู่ภายใต้หลังคาแบบยกลอย    Read more
  1   2 3 4 Next
Topics 1 - 5 of 105

ชมไอเดีย "แบบบ้าน" ทั้งหมด