/home/homedecor/domains/www1.homedecorthai.com/public_html/templates/default/ext/ui/article_detail.tpl.php แบบบ้านสองชั้น ตกแต่งเรียบง่ายสไตล์ญี่ปุ่น
 
 
    
   
     
     
   
 

แบบบ้านสองชั้น ตกแต่งเรียบง่ายสไตล์ญี่ปุ่น

แบบบ้านสองชั้น

29 ก.ย. 2559
แบบบ้านสองชั้น ตกแต่งเรียบง่ายสไตล์ญี่ปุ่น
บ้านสองชั้นตกแต่งแบบเรียบง่าย แต่ฟังค์ชั่นการใช้งานที่สะดวกครบครัน ตามสไตล์ญี่ปุ่นนี้ เป็นผลงานของ  STORE MUU design studio ภายนอกตกแต่งด้วยสีขาวแบบเรียบง่าย ส่วนภายในนั้นใช้สีขาวเป็นหลักเช่นกัน เข้ากันกับพื้นไม้ มีพื้นที่เปิดโล่งที่เชื่อมต่อกันของห้องครัว ห้องทานอาหาร และห้องนั่งเล่น หากใครชอบสไตล์แบบเรียบง่าย แบบบ้านหลังนี้ก็ดูน่าสนใจไม่น้อยเลยทีเดียวครับ
Photo:freshome.com
แบบบ้านสองชั้น
แบบบ้านสองชั้น
พื้นที่เปิดที่เชื่อมต่อกันของบ้าน
ภายนอกตกแต่งแบบเรียบง่าย
บ้านสองชั้น แบบเรียบง่าย
บ้านสองชั้น สไตล์ญี่ปุ่น
พื้นไม้ดูอบอุ่น
แบบบ้านสองชั้น
ไอเดียบ้านสองชั้น
แบบบ้าน
แบบบ้าน 2 ชั้น
ห้องรับประทานอาหาร
ห้องครัว
การตกแต่งภายใน
พืนที่นั่งเล่น
แบบบ้านสองชั้น
ไอเดียการแต่งบ้าน
แบบบ้านสองชั้น
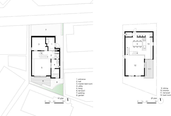
แปลนบ้าน
แปลนบ้าน
ติดตามข้อมูลดีๆ จาก Homedecorthai ได้ที่
www.homedecorthai.com
FB: www.facebook.com/HomeDecorThaiOfficial
IG:homedecorthai (www.instagram.com/homedecorthai)

 


แหล่งที่มา : freshome.com
จำนวนคนอ่าน : 5283 คน

บทความที่ใกล้เคียงกัน : แบบบ้านสองชั้น

 

ไอเดียมาใหม่ใน"แบบบ้าน"

แบบบ้าน

บ้านไม้ชั้นเดียว ตกแต่งแบบเรียบง่าย

26 ธ.ค. 2560
บ้านไม้ชั้นเดียว ตกแต่งแบบเรียบง่าย

บ้านไม้ชั้นเดียว ออกแบบตกแต่งแบบเรียบง่าย หลังคาหน้าจั่วและกระจกบนใหญ่ พื้นที่การใช้งานภายในบ้านสะดวก ครบครันมีทั้งห้องครัว ห้องรับแขก ห้องทานอาหาร ห้องนังเล่น ซึ่งทั้งหมดเป็นพื้นที่เชื่อมต่อกัน การตกแต่งภายในเป็นแบบเรียบง่ายดูอบอุ่น    Read more

พาไปชม บ้านแห่งต้นไม้ ผสมผสานธรรมชาติเข้ากับพื้นที่อยู่อาศัยในสไตล์โมเดิร์นที่เรียบง่าย

13 ธ.ค. 2560
พาไปชม บ้านแห่งต้นไม้ ผสมผสานธรรมชาติเข้ากับพื้นที่อยู่อาศัยในสไตล์โมเดิร์นที่เรียบง่าย

    Read more

สวนเล็กๆ ก็สวยได้

20 ก.ย. 2560
สวนเล็กๆ ก็สวยได้

สวนเล็กๆ ก็สวยได้ ขนาดนั้นบางทีก็ไม่สำคัญเสมอไป ขึ้นอยู่กับความพอดี พอใจ ของแต่ละคน อย่าเพิ่งคิดไปไกลครับ วันนี้เราเอาตัวอย่างการจัดสวนแบบเล็กๆ น่ารักๆ มาฝากกันครับ    Read more

แบบบ้านสองชั้น สไตล์โมเดิร์น

20 ก.ย. 2560
แบบบ้านสองชั้น สไตล์โมเดิร์น

เป็นการออกแบบที่ดูสวยหรูเรียบง่าย ร่วมสมัย ภายตกแต่งผนังโดยการก่ออิฐ เน้นโชว์พื้นผิว พื้นที่รับประทานอาหารเชื่อมต่อกับห้องครัวและห้องนั่งเล่น เปิดโล่งถึงกันหมด ทำให้ดูกว้างขวาง และยังมีสระว่ายน้ำที่ล้อมรอบด้วยสีเขียวของสวนเพื่อเพิ่มความสดชื่นให้กับบ้านอีกด้วย    Read more

บ้านสไตล์วิลล่า

14 ก.ย. 2560
บ้านสไตล์วิลล่า

บ้านสไตล์วิลล่า ในแคลิฟอร์เนีย ออกแบบโดย Turnbull Griffin Haesloop เป็นความลงตัวที่สมบูรณ์แบบระหว่างในร่มและกลางแจ้ง ที่ออกแบบได้กลมกลืนกับบรรยากาศโดยรอบ พื้นท่่กลางแจ้งมีสระว่ายน้ำและสระน้ำตามธรรมชาติ ห้องนอน ห้องครัว และพื้นที่ต่างๆ อยู่ภายใต้หลังคาแบบยกลอย    Read more
  1   2 3 4 Next
Topics 1 - 5 of 105

ชมไอเดีย "แบบบ้าน" ทั้งหมด