/home/homedecor/domains/www1.homedecorthai.com/public_html/templates/default/ext/ui/article_detail.tpl.php บ้านกระท่อมต้นไม้สุดแนว...
 
 
    
   
     
     
   
 

บ้านกระท่อมต้นไม้สุดแนว...

บ้านขนาดเล็ก

19 ส.ค. 2557

บ้านกระท่อมต้นไม้สุดแนว...
 
        ขอแนะนำเพื่อนๆ ที่รักธรรมชาติค่ะ วันนี้ homedecorthai พาเพื่อนมาดูบ้านที่ออกแบบมาเพื่อให้สมดุลกับธรรมชาติมากๆ เลยค่ะ เป็นการสร้างบ้านให้เข้ากับสิ่งแวดล้อมค่ะ หรือเรียกอีกอย่างว่าบ้านต้นไม้ค่ะ ลองดูกันค่ะว่าการออกแบบของบ้านต้นไม้นั้นจะเป็นอย่างไร
 

ออกแบบสถาปัตยกรรมด้วยรูปทรงเลขาคณิตค่ะ ซึ่งโครงสร้างของตัวบ้านนั้นจะดูโดดเด่นมากค่ะ เพราะดูแปลกตาแต่ก็มีความน่าสนใจมากทีเดี่ยวค่ะ
 
 

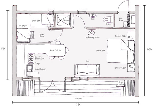
สำหรับการจัดตกแต่งด้านในนั้นก็แสนจะกระทัดรัดมากๆ จัดสรรปันส่วนได้อย่างลงตัวมากๆ ค่ะ
 
 

มีแบบยกระดับตัวบ้านแบบสูงกว่าพื้นด้วยค่ะ ชมวิวธรรมชาติได้อย่างดีเลยละค่ะ... ^^
 

ภาพจากมุมสูงค่ะเพื่อให้เห็นรายละเอียดของตัวบ้านด้านในค่ะ
 

รายละเอียดโครงสร้างด้านในตัวบ้านค่ะ
 

รายละเอียดโครงสร้างด้านนอกตัวบ้านค่ะ
 

 


แหล่งที่มา : freshome.com
จำนวนคนอ่าน : 12688 คน

บทความที่ใกล้เคียงกัน : บ้านขนาดเล็ก, บ้านไม้

 

ไอเดียมาใหม่ใน"แบบบ้าน"

แบบบ้าน

บ้านไม้ชั้นเดียว ตกแต่งแบบเรียบง่าย

26 ธ.ค. 2560
บ้านไม้ชั้นเดียว ตกแต่งแบบเรียบง่าย

บ้านไม้ชั้นเดียว ออกแบบตกแต่งแบบเรียบง่าย หลังคาหน้าจั่วและกระจกบนใหญ่ พื้นที่การใช้งานภายในบ้านสะดวก ครบครันมีทั้งห้องครัว ห้องรับแขก ห้องทานอาหาร ห้องนังเล่น ซึ่งทั้งหมดเป็นพื้นที่เชื่อมต่อกัน การตกแต่งภายในเป็นแบบเรียบง่ายดูอบอุ่น    Read more

พาไปชม บ้านแห่งต้นไม้ ผสมผสานธรรมชาติเข้ากับพื้นที่อยู่อาศัยในสไตล์โมเดิร์นที่เรียบง่าย

13 ธ.ค. 2560
พาไปชม บ้านแห่งต้นไม้ ผสมผสานธรรมชาติเข้ากับพื้นที่อยู่อาศัยในสไตล์โมเดิร์นที่เรียบง่าย

    Read more

สวนเล็กๆ ก็สวยได้

20 ก.ย. 2560
สวนเล็กๆ ก็สวยได้

สวนเล็กๆ ก็สวยได้ ขนาดนั้นบางทีก็ไม่สำคัญเสมอไป ขึ้นอยู่กับความพอดี พอใจ ของแต่ละคน อย่าเพิ่งคิดไปไกลครับ วันนี้เราเอาตัวอย่างการจัดสวนแบบเล็กๆ น่ารักๆ มาฝากกันครับ    Read more

แบบบ้านสองชั้น สไตล์โมเดิร์น

20 ก.ย. 2560
แบบบ้านสองชั้น สไตล์โมเดิร์น

เป็นการออกแบบที่ดูสวยหรูเรียบง่าย ร่วมสมัย ภายตกแต่งผนังโดยการก่ออิฐ เน้นโชว์พื้นผิว พื้นที่รับประทานอาหารเชื่อมต่อกับห้องครัวและห้องนั่งเล่น เปิดโล่งถึงกันหมด ทำให้ดูกว้างขวาง และยังมีสระว่ายน้ำที่ล้อมรอบด้วยสีเขียวของสวนเพื่อเพิ่มความสดชื่นให้กับบ้านอีกด้วย    Read more

บ้านสไตล์วิลล่า

14 ก.ย. 2560
บ้านสไตล์วิลล่า

บ้านสไตล์วิลล่า ในแคลิฟอร์เนีย ออกแบบโดย Turnbull Griffin Haesloop เป็นความลงตัวที่สมบูรณ์แบบระหว่างในร่มและกลางแจ้ง ที่ออกแบบได้กลมกลืนกับบรรยากาศโดยรอบ พื้นท่่กลางแจ้งมีสระว่ายน้ำและสระน้ำตามธรรมชาติ ห้องนอน ห้องครัว และพื้นที่ต่างๆ อยู่ภายใต้หลังคาแบบยกลอย    Read more
  1   2 3 4 Next
Topics 1 - 5 of 105

ชมไอเดีย "แบบบ้าน" ทั้งหมด