/home/homedecor/domains/www1.homedecorthai.com/public_html/templates/default/ext/ui/article_detail.tpl.php แบบบ้านชั้นเดียว กับสนามรูปไข่
 
 
    
   
     
     
   
 

แบบบ้านชั้นเดียว กับสนามรูปไข่

แบบบ้านชั้นเดียว

25 ส.ค. 2560
แบบบ้านชั้นเดียว กับสนามรูปไข่ วันนี้ Homedecorthai มีไอเดียแบบบ้านชั้นเดียว สุดแนว สำหรับคนชอบการออกแบบดีไซน์ที่ไม่เหมือนใคร ผลงานออกแบบของ  Luigi Rosselli สถาปนิกชาวออสเตรเลีย  โดยออกแบบให้ตัวบ้านล้อมสนามสีเขียวรูปวงรีซึ่งถ้ามองจากมุมสูงจะโดดเด่นมาก มีระเบียงด้านในเชื่อมต่อกันทุกห้องล้อมรอบสนามหญ้าด้านใน
พื้นระเบียงโดยรอบทำด้วยไม้
มุมหน้าบ้าน จะเห็นว่ามองจากด้านนอกก็ดูธรรมดา แต่ดูเรียบหรู ตัวผนังนอกบ้านออกแบบให้ใช่อิฐสีน้ำตาลแดง ตัดกับปานหน้าต่างสีขาว และใช้การตกแต่งทางเดินด้วยสวนหินภายนอกบ้าน

ภายในบ้านเน้นความสวยงามที่เรียบง่าย การตกแต่งด้วยเฟอร์นิเจอร์หลักๆ ถูกจัดวางให้พอเหมาะ และไม่มากชิ้นนัก ผนังสีขาว-ครีมอ่อน ตัดกับพื้นบ้านที่เป็นสีทึบและเข้ม กรอบประตูเน้นสีเข้มเพื่อให้ตัดกันโดดเด่นกับผนังขาวๆของตัวบ้าน
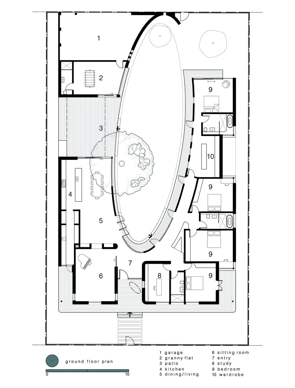
ภาพแบบแปลนบ้าน กว้างขวางและมีพื้นที่ใช้สอยหลายห้อง

Photo: luigirosselli.com
ติดตามข้อมูลดีๆ จาก Homedecorthai ได้ที่
www.homedecorthai.com
FB: www.facebook.com/HomeDecorThaiOfficial
IG:homedecorthai (www.instagram.com/homedecorthai)

 


แหล่งที่มา :
จำนวนคนอ่าน : 6088 คน

บทความที่ใกล้เคียงกัน : แบบบ้านชั้นเดียว

 

ไอเดียมาใหม่ใน"แบบบ้าน"

แบบบ้าน

บ้านไม้ชั้นเดียว ตกแต่งแบบเรียบง่าย

26 ธ.ค. 2560
บ้านไม้ชั้นเดียว ตกแต่งแบบเรียบง่าย

บ้านไม้ชั้นเดียว ออกแบบตกแต่งแบบเรียบง่าย หลังคาหน้าจั่วและกระจกบนใหญ่ พื้นที่การใช้งานภายในบ้านสะดวก ครบครันมีทั้งห้องครัว ห้องรับแขก ห้องทานอาหาร ห้องนังเล่น ซึ่งทั้งหมดเป็นพื้นที่เชื่อมต่อกัน การตกแต่งภายในเป็นแบบเรียบง่ายดูอบอุ่น    Read more

พาไปชม บ้านแห่งต้นไม้ ผสมผสานธรรมชาติเข้ากับพื้นที่อยู่อาศัยในสไตล์โมเดิร์นที่เรียบง่าย

13 ธ.ค. 2560
พาไปชม บ้านแห่งต้นไม้ ผสมผสานธรรมชาติเข้ากับพื้นที่อยู่อาศัยในสไตล์โมเดิร์นที่เรียบง่าย

    Read more

สวนเล็กๆ ก็สวยได้

20 ก.ย. 2560
สวนเล็กๆ ก็สวยได้

สวนเล็กๆ ก็สวยได้ ขนาดนั้นบางทีก็ไม่สำคัญเสมอไป ขึ้นอยู่กับความพอดี พอใจ ของแต่ละคน อย่าเพิ่งคิดไปไกลครับ วันนี้เราเอาตัวอย่างการจัดสวนแบบเล็กๆ น่ารักๆ มาฝากกันครับ    Read more

แบบบ้านสองชั้น สไตล์โมเดิร์น

20 ก.ย. 2560
แบบบ้านสองชั้น สไตล์โมเดิร์น

เป็นการออกแบบที่ดูสวยหรูเรียบง่าย ร่วมสมัย ภายตกแต่งผนังโดยการก่ออิฐ เน้นโชว์พื้นผิว พื้นที่รับประทานอาหารเชื่อมต่อกับห้องครัวและห้องนั่งเล่น เปิดโล่งถึงกันหมด ทำให้ดูกว้างขวาง และยังมีสระว่ายน้ำที่ล้อมรอบด้วยสีเขียวของสวนเพื่อเพิ่มความสดชื่นให้กับบ้านอีกด้วย    Read more

บ้านสไตล์วิลล่า

14 ก.ย. 2560
บ้านสไตล์วิลล่า

บ้านสไตล์วิลล่า ในแคลิฟอร์เนีย ออกแบบโดย Turnbull Griffin Haesloop เป็นความลงตัวที่สมบูรณ์แบบระหว่างในร่มและกลางแจ้ง ที่ออกแบบได้กลมกลืนกับบรรยากาศโดยรอบ พื้นท่่กลางแจ้งมีสระว่ายน้ำและสระน้ำตามธรรมชาติ ห้องนอน ห้องครัว และพื้นที่ต่างๆ อยู่ภายใต้หลังคาแบบยกลอย    Read more
  1   2 3 4 Next
Topics 1 - 5 of 105

ชมไอเดีย "แบบบ้าน" ทั้งหมด