/home/homedecor/domains/www1.homedecorthai.com/public_html/templates/default/ext/ui/article_detail.tpl.php แบบบ้านไม้ ท่ามกลางหุบเขา ประเทศสหรัฐอเมริกา
 
 
    
   
     
     
   
 

แบบบ้านไม้ ท่ามกลางหุบเขา ประเทศสหรัฐอเมริกา

แบบบ้านไม้

19 ส.ค. 2557

แบบบ้านไม้ ท่ามกลางหุบเขา ประเทศสหรัฐอเมริกา
 
        เป็นบ้านท่ามกลางธรรมชาติถูกออกแบบโดย Balance Associates Architects ตั้งอยู่ในรัฐวอชิงตัน สหรัฐอเมริกา อยู่ในคอนเซ็ปการออกแบบบ้านแบบบรรยากาศแคมป์ปิ้ง พื้นที่ที่ใช้สร้าง 1,653 ตารางฟุต สร้างกลางหุบเขาล้อมรอบไปด้วยป่าไม้ต้นสูง มองเห็นวิวรอบๆ อย่างชัดเจน ซึ่งออกแบบในตัวบ้านไว้อย่างลงตัวมีฟังก์ชัน ส่วนด้านนอกก็ยังมีทางเดินยาวสำหรับเดินชมธรรมชาติที่สร้างไว้อย่างลงตัว
 

เข้ากับบรรยากาศเพราะเขาจะใช้ไฟที่ให้แสงสว่างสีทองเป็นการบ่งบอกถึงความอบอุ่น


สำหรับบรรยากาศตอนกลางวันนั้นบ้านก็จะให้บรรยากาศร่มเย็น สงบเงียบ เหมาะกับผู้ที่รักสันโดด
 

ด้านข้างจะออกแบบให้มีบันไดทางเดินสำหรับเดินออกมายังธรรมชาติด้านนอก
 

และจะมีแคทวอล์คสำหรับเดินชมต้นไม้ในหุบเขาอีกด้วย
 
 

ห้องนี้จะติดกระจกใสเพื่อให้เห็นธรรมชาติด้านนอกได้อย่างชัดเจน
 
 

ห้องนี้เป็นห้องที่ต่อกับแคทวอล์คทางเดินชมธรรมชาติ จะมีมุมนั่งเล่นเล็กไว้สำหรับอินบรรยากาศ
 
 

ห้องครัวและห้องรับประทานอาหารก็จะติดกระจกใสเหมือนกันและยังมีห้องน่งเล่นในนี้ด้วย ครบเซ็ต
 
 

มุมบ้านชั้นสอง ภายในตัวบ้านส่วนมากจะใช้ไม้จริงทั้งหมด
 


ห้องน้ำเขาก็ดีไซน์ไว้แบบเรียบง่าย สีโทนไม้แนนเรียบหรู

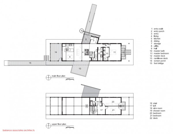
มาดูแปลนบ้านกัน

 
 
 
 

 


แหล่งที่มา : freshome.com
จำนวนคนอ่าน : 13559 คน
 

ไอเดียมาใหม่ใน"แบบบ้าน"

แบบบ้าน

บ้านไม้ชั้นเดียว ตกแต่งแบบเรียบง่าย

26 ธ.ค. 2560
บ้านไม้ชั้นเดียว ตกแต่งแบบเรียบง่าย

บ้านไม้ชั้นเดียว ออกแบบตกแต่งแบบเรียบง่าย หลังคาหน้าจั่วและกระจกบนใหญ่ พื้นที่การใช้งานภายในบ้านสะดวก ครบครันมีทั้งห้องครัว ห้องรับแขก ห้องทานอาหาร ห้องนังเล่น ซึ่งทั้งหมดเป็นพื้นที่เชื่อมต่อกัน การตกแต่งภายในเป็นแบบเรียบง่ายดูอบอุ่น    Read more

พาไปชม บ้านแห่งต้นไม้ ผสมผสานธรรมชาติเข้ากับพื้นที่อยู่อาศัยในสไตล์โมเดิร์นที่เรียบง่าย

13 ธ.ค. 2560
พาไปชม บ้านแห่งต้นไม้ ผสมผสานธรรมชาติเข้ากับพื้นที่อยู่อาศัยในสไตล์โมเดิร์นที่เรียบง่าย

    Read more

สวนเล็กๆ ก็สวยได้

20 ก.ย. 2560
สวนเล็กๆ ก็สวยได้

สวนเล็กๆ ก็สวยได้ ขนาดนั้นบางทีก็ไม่สำคัญเสมอไป ขึ้นอยู่กับความพอดี พอใจ ของแต่ละคน อย่าเพิ่งคิดไปไกลครับ วันนี้เราเอาตัวอย่างการจัดสวนแบบเล็กๆ น่ารักๆ มาฝากกันครับ    Read more

แบบบ้านสองชั้น สไตล์โมเดิร์น

20 ก.ย. 2560
แบบบ้านสองชั้น สไตล์โมเดิร์น

เป็นการออกแบบที่ดูสวยหรูเรียบง่าย ร่วมสมัย ภายตกแต่งผนังโดยการก่ออิฐ เน้นโชว์พื้นผิว พื้นที่รับประทานอาหารเชื่อมต่อกับห้องครัวและห้องนั่งเล่น เปิดโล่งถึงกันหมด ทำให้ดูกว้างขวาง และยังมีสระว่ายน้ำที่ล้อมรอบด้วยสีเขียวของสวนเพื่อเพิ่มความสดชื่นให้กับบ้านอีกด้วย    Read more

บ้านสไตล์วิลล่า

14 ก.ย. 2560
บ้านสไตล์วิลล่า

บ้านสไตล์วิลล่า ในแคลิฟอร์เนีย ออกแบบโดย Turnbull Griffin Haesloop เป็นความลงตัวที่สมบูรณ์แบบระหว่างในร่มและกลางแจ้ง ที่ออกแบบได้กลมกลืนกับบรรยากาศโดยรอบ พื้นท่่กลางแจ้งมีสระว่ายน้ำและสระน้ำตามธรรมชาติ ห้องนอน ห้องครัว และพื้นที่ต่างๆ อยู่ภายใต้หลังคาแบบยกลอย    Read more
  1   2 3 4 Next
Topics 1 - 5 of 105

ชมไอเดีย "แบบบ้าน" ทั้งหมด