/home/homedecor/domains/www1.homedecorthai.com/public_html/templates/default/ext/ui/article_detail.tpl.php แบบบ้าน ลอยตัวบนอากาศ ในแนปาริเวอร์เฮ้าส์
 
 
    
   
     
     
   
 

แบบบ้าน ลอยตัวบนอากาศ ในแนปาริเวอร์เฮ้าส์

21 มิ.ย. 2555

แบบบ้าน ลอยตัวบนอากาศ ในแนปาริเวอร์เฮ้าส์
 
          หลายคนกำลังมองหาสถานที่พักผ่อนที่หลบหนีจากความวุ่นวายในเมือง แนปาริเวอร์เฮ้าส์ นั้นถือได้ว่าเป็นเมืองหนึ่งที่มีพื้นที่ที่สงบและเป็นสถานที่สวยงาม
 
 

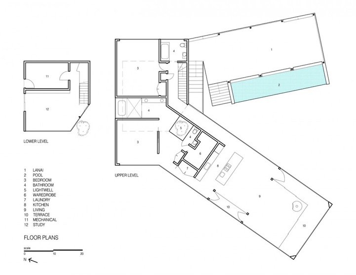
บ้านนี้ถูกสร้างขึ้นโดยทีมงาน Craig Steely ที่เขาจะยกลอยขึ้นเหนือพื้นดิน โดยมีฐานรับอยู่ตรงกลางและอยู่อีกปลายด้านหนึ่ง ตัวบ้านรอบๆนั้นจะเป็นทางเดินที่โรยด้วยหิน พื้นที่ที่ใช้ในการสร้างบ้านหลังนี้ 2,382 ตารางฟุต
 

ตกแต่งภายในนั้นมีห้องนอนอยู่บริเวณกลางบ้าน และยังมีห้องครัว ห้องนั่งเล่นที่อยู่อีกมุมของบ้าน และนอกจากนี้แล้วนั้นยังมีสระว่ายน้ำไว้พักผ่อนในฤดูร้อนอีกด้วย
 
 
 
 
 

 


แหล่งที่มา : inthralld.com
จำนวนคนอ่าน : 11243 คน

บทความที่ใกล้เคียงกัน :

 

ไอเดียมาใหม่ใน"ร้านจำหน่าย หินขัด"

ร้านจำหน่าย หินขัด

10 ห้องนั่งเล่นสุดเริดสไตล์โมเดิร์น!!

15 ต.ค. 2557
10 ห้องนั่งเล่นสุดเริดสไตล์โมเดิร์น!!

วันนี้จัดหนักให้กับชาวเจ้าของบ้านที่ต้องการแต่งห้องนั่งเล่นด้วย 10 ไอเดียห้องนั่งเล่นสุดเริด ใครที่มีโครงการที่จะแต่งห้องนั่งเล่นใหม่ หรือว่ากำลังแต่งห้องนั่งเล่นอยู่ตอนนี้แล้วไอเดียเกิดตันขึ้นมาละก็ นี่เลยกับหลากไอเดียแต่งห้องนั่งเล่นสวยๆ จัดไปแบบนี่นิดแบบนั่นหน่อย ก็เจิดเป็นสไตล์เราได้ สวยเริดอย่าได้แคร์     Read more

การเตรียมห้องใหม่กับ(เจ้าตัวเล็ก)

9 ต.ค. 2557
การเตรียมห้องใหม่กับ(เจ้าตัวเล็ก)

การจัดเตรียมห้องให้เหมาะสม สะดวกสบายและแสงสว่างในห้องลูกน้อยควรเลือกใช้ดวงไฟแบบไฟหรี่ เด็กเล็กมีปฎิกริยาตอบสนองต่อสีเข้มและรูปร่างรูปทรง ควรเลือกโทนสีพื้นห้องเป็นสีอ่อนๆ และเพิ่มสีสันสดใสรูปทรงเข้าไป เพราะจะง่ายต่อการเปลี่ยนแปลงของเด็ก    Read more

แบบบันไดสไลเดอร์ไม่ธรรมดาจริงๆ

8 ต.ค. 2557
แบบบันไดสไลเดอร์ไม่ธรรมดาจริงๆ

สำหรับใครที่กำลังอยากได้ไอเดียแบบไม่ธรรมดาสำหรับบันไดในบ้าน ลองมาดูไอเดียนี้ก่อนคะ ซึ่งเป็นแบบบันไดบ้านของอพาร์ทเมนต์สองชั้นในนิวยอร์ก ออกแบบโดย Turett Collaborative ที่ว่าไม่ธรรมดานั้น ก็เพราะเป็นบันได้ในรูปแบบสไลเดอร์ทำจากสแตนเลส เป็นบันได้ที่เราสามารถ สามารถสไลด์ลงมาจากชั้นสองได้เลย ไม่ต้องเดินเหมือนบันไดธรรมดาๆ ดูแล้วน่าจะสะดวกและน่าสนุกไม่น้อยเลยนะคะ ถ้าบ้านใครมีเด็กๆรับรองต้องชอบแน่ๆเลยละค้า!    Read more

แบบบ้านโมเดิร์น พื้นที่แคบๆ ที่แสนจะลงตัว

29 ก.ย. 2557
แบบบ้านโมเดิร์น พื้นที่แคบๆ ที่แสนจะลงตัว

เป็นการออกแบบบ้านในพื้นที่แคบๆ ได้อย่างลงตัวมาก เพราะบ้านที่ปลูกบนพื้นที่แคบๆ นี้นั้นเหมาะกับพื้นที่ในเมืองที่มีพื้นที่ที่แสนจะจำกัดมาก เนื่องด้วยเป็นพื้นที่ที่มีราคาแพงและเป็นที่ต้องการของใครหลายๆ คน วันนี้ homedecorthai จึงขอแนะนำการออกแบบบ้านโมเดิร์น บนพื้นที่แคบๆ กัน    Read more

แต่งห้องครัวสไตล์ญี่ปุ่น

11 ก.ย. 2557
แต่งห้องครัวสไตล์ญี่ปุ่น

ห้องครัวโมเดิร์นญี่ปุ่นสไตล์ ออกแบบตกแต่งได้สวยงาม หรู คลาสสิก มากๆค่ะ    Read more
  1   2 3 4 Next
Topics 1 - 5 of 326

ชมไอเดีย "ร้านจำหน่าย หินขัด" ทั้งหมด