/home/homedecor/domains/www1.homedecorthai.com/public_html/templates/default/ext/ui/article_detail.tpl.php พาไปชม บ้านแห่งต้นไม้ ผสมผสานธรรมชาติเข้ากับพื้นที่อยู่อาศัยในสไตล์โมเดิร์นที่เรียบง่าย
 
 
    
   
     
     
   
 

พาไปชม บ้านแห่งต้นไม้ ผสมผสานธรรมชาติเข้ากับพื้นที่อยู่อาศัยในสไตล์โมเดิร์นที่เรียบง่าย

แบบบ้าน|บ้านสไตล์โมเดิร์น|บ้านต้นไม้

13 ธ.ค. 2560

พาไปชม บ้านแห่งต้นไม้
ผสมผสานธรรมชาติเข้ากับพื้นที่อยู่อาศัยในสไตล์โมเดิร์นที่เรียบง่าย

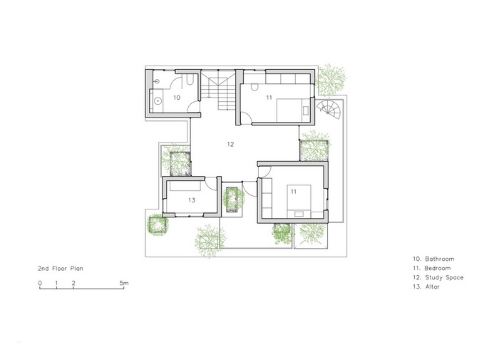
สวัสดีค่ะ วันนี้เราจะพาทุกคนไปชม แบบบ้านสามชั้น สไตล์โมเดิร์น พร้อมการออกแบบที่เน้นให้มีพื้นที่สำหรับปลูกต้นไม้ สร้างความร่มรื่น เหมาะสำหรับบ้านในเมืองร้อน ผลงานชิ้นนี้เป็นการออกแบบจาก VTN Architects เราลองไปชมกันเลยค่ะ

บ้านหลังนี้เป็นหนึ่งในโครงการที่มีชื่อว่า House for Trees เป็นโครงการสร้างบ้านสีเขียวให้กับชุมชนเมือง มีทำเลที่ตั้งอยู่ในเมืองโฮจิมินห์ ประเทศเวียดนาม เพื่อลดทอนมลภาวะและบรรยากาศแออัด ทั้งยังลดความเสี่ยงจากภัยพิบัติน้ำท่วม รวมไปถึงการเชื่อมความสัมพันธ์ให้คนได้อยู่ใกล้ชิดกับธรรมชาติมากขึ้น

 

 ตัวบ้านมีลักษณะเป็นบ้านคอนกรีตสามชั้น โครงสร้างรูปทรงสี่เหลี่ยม โดยแต่ละชั้นจะมีการจัดวางรูปแบบที่แตกต่างกันออกไป สร้างความสลับซับซ้อนเพื่อให้มีพื้นที่ว่างสำหรับปลูกต้นไม้ เกิดเป็นสวนเล็กๆ ท่ามกลางตึกสูงใหญ่รอบบ้าน

 

ปัจจุบันชาวเวียดนามรุ่นใหม่เริ่มเข้าหาธรรมชาติมากขึ้น ซึ่งการออกแบบบ้านลักษณะนี้ก็ถือว่าสามารถตอบโจทย์ประชาชนที่อาศัยอยู่ในพื้นที่นี้ได้เป็นอย่างดี

 

ภายในตกแต่งสไตล์ปูนเปลือย พื้นที่ชั้นล่างจะเป็นห้องนั่งเล่นโล่งกว้าง อีกหนึ่งมุมพักผ่อนสำหรับสมาชิกภายในครอบครัว ผนังส่วนใหญ่ติดตั้งกระจกบานใส เพื่อให้แสงส่องผ่านเข้ามาภายในบ้านได้อย่างทั่วถึง อีกทั้งยังเปิดให้เห็นวิวของต้นไม้ที่อยู่บริเวณโดยรอบได้

 

วัสดุส่วนใหญ่ที่นำมาใช้ในการก่อสร้าง เป็นวัสดุท้องถิ่นที่หาได้จากธรรมชาติ และความพิเศษของบ้านหลังนี้คือ ผนังหินขัดที่ใช้ในการตกแต่งภายใน ได้รับความนิยมอย่างแพร่หลายในยุค 80s รวมถึงในยุคนี้ด้วยเช่นกัน

 

 

 แต่ละชั้นจะมีระเบียงขนาดพอเหมาะ จัดวางเก้าอี้นั่งเล่น พร้อมพื้นที่สำหรับปลูกต้นไม้ สร้างความร่มรื่นให้กับมุมนั่งพักผ่อนนอกบ้าน

 

จากในรูปจะสังเกตได้ว่าแต่ละชั้นจะมีการออกแบบที่แตกต่างกันออกไป ทั้งนี้ก็เพื่อสร้างเป็นพื้นที่ว่างสำหรับปลูกต้นไม้สูงใหญ่ เปิดให้ต้นไม้เจริญเติบโตได้อย่างเต็มที่

 

และนี่ก็เป็นบ้านอีกหลังหนึ่งที่ได้รับการออกแบบอย่างมีประสิทธิภาพ ช่วยให้คนได้อยู่ใกล้ชิดกับธรรมชาติ เหมาะสำหรับคนเมืองที่อยู่อาศัยอยู่ท่ามกลางมลภาวะทางอากาศ ใครที่สนใจแบบบ้านสไตล์นี้ก็ลองไปศึกษาข้อมูลเพิ่มเติมกันดูนะคะ

 

 

 

ขอบคุณข้อมูลจาก :  www.sanook.com/home/14597/

ที่มา :  archdaily
ภาพ :  archdaily

 

 

 


แหล่งที่มา :
จำนวนคนอ่าน : 15591 คน

บทความที่ใกล้เคียงกัน : บ้านสไตล์โมเดิร์น, แบบบ้าน, บ้านต้นไม้

 

ไอเดียมาใหม่ใน"Home Idea"

Home Idea

ตกแต่งดีมีแต่เฮง รวมไอเท็มขึ้นบ้านใหม่เสริมมงคลอยู่แล้วเฮงสุดๆ!

7 ธ.ค. 2561
ตกแต่งดีมีแต่เฮง รวมไอเท็มขึ้นบ้านใหม่เสริมมงคลอยู่แล้วเฮงสุดๆ!

จะมีอะไรมีความสุขมากกว่าการได้ขึ้นบ้านใหม่ด้วยวันดีๆ และสำหรับใครที่ได้ฤกษ์งามยามดีมีโอกาสได้ขึ้นบ้านใหม่ทั้งทีต้องอย่าลืมไอเท็มดีๆ ที่จะช่วยเสริมสิริมงคลให้บ้านใหม่ของคุณอยู่แล้วดี อยู่แล้วเฮงด้วยนะ!     Read more

รีโนเวทบ้านเก่า แบบผสมผสาน สวยงามลงตัว

2 มี.ค. 2561
รีโนเวทบ้านเก่า แบบผสมผสาน สวยงามลงตัว

รีโนเวทบ้านเก่า แบบผสมผสาน สวยงามลงตัว วันนี้พาไปชม ไอเดียการรีโนเวทบ้านเก่า แบบครึ่งไม้ครึ่งปูนแบบผสมผสานจาก Facebook ปลาทูเค็ม รีโนเวทโฮม ใครที่มีโครงการที่จะรีโนเวทบ้าน แต่ยังคิดไม่ออกว่าจะทำแนวไหนดี ลองเข้าไปชมไอเดียกันก่อนได้เลย ครับ    Read more

บ้านไม้ชั้นเดียว ตกแต่งแบบเรียบง่าย

26 ธ.ค. 2560
บ้านไม้ชั้นเดียว ตกแต่งแบบเรียบง่าย

บ้านไม้ชั้นเดียว ออกแบบตกแต่งแบบเรียบง่าย หลังคาหน้าจั่วและกระจกบนใหญ่ พื้นที่การใช้งานภายในบ้านสะดวก ครบครันมีทั้งห้องครัว ห้องรับแขก ห้องทานอาหาร ห้องนังเล่น ซึ่งทั้งหมดเป็นพื้นที่เชื่อมต่อกัน การตกแต่งภายในเป็นแบบเรียบง่ายดูอบอุ่น    Read more

พาไปชม บ้านแห่งต้นไม้ ผสมผสานธรรมชาติเข้ากับพื้นที่อยู่อาศัยในสไตล์โมเดิร์นที่เรียบง่าย

13 ธ.ค. 2560
พาไปชม บ้านแห่งต้นไม้ ผสมผสานธรรมชาติเข้ากับพื้นที่อยู่อาศัยในสไตล์โมเดิร์นที่เรียบง่าย

    Read more

สวนเล็กๆ ก็สวยได้

20 ก.ย. 2560
สวนเล็กๆ ก็สวยได้

สวนเล็กๆ ก็สวยได้ ขนาดนั้นบางทีก็ไม่สำคัญเสมอไป ขึ้นอยู่กับความพอดี พอใจ ของแต่ละคน อย่าเพิ่งคิดไปไกลครับ วันนี้เราเอาตัวอย่างการจัดสวนแบบเล็กๆ น่ารักๆ มาฝากกันครับ    Read more
  1   2 3 4 Next
Topics 1 - 5 of 126

ชมไอเดีย "Home Idea" ทั้งหมด