/home/homedecor/domains/www1.homedecorthai.com/public_html/templates/default/ext/ui/article_detail.tpl.php แบบบ้าน 2 ชั้น สไตล์โมเดิร์น สำหรับครอบครัว
 
 
    
   
     
     
   
 

แบบบ้าน 2 ชั้น สไตล์โมเดิร์น สำหรับครอบครัว

แบบบ้านสองชั้น

7 ก.ย. 2560
แบบบ้าน 2 ชั้น สไตล์โมเดิร์น สำหรับครอบครัว  ออกแบบโดย Aidhos Studio ภายนอกนั้นออกแบบให้มีลักษณะเป็นสี่เหลี่ยมผืนผ้าตามสไตล์ของบ้านแบบโมเดิร์น การออกแบบตกแต่งภายในใช้โทนสีภายในเป็นสีขาวเป็นหลักทำให้ห้องดูสว่างและกว้างมากขึ้น ตกแต่งด้วยพื้นไม้ขัดมันและพื้นผิวของปูนขัดมันผสมผสานกันอย่างลงตัว ด้านนอกตัวบ้านนั้นมีระเบียงยาวออกมาจากตัวบ้านเพื่อเป็นส่วนไว้สำหรับรับแขกหรือจัดงานปาร์ตี้สังสรรค์รับแขกได้อย่างลงตัวทีเดียว
Photo:freshome.com
บ้านสไตล์โมเดิร์น
บ้านสไตล์โมเดิร์น
บ้านสไตล์โมเดิร์น
บ้านสไตล์โมเดิร์น
บ้านสไตล์โมเดิร์น
บ้านสไตล์โมเดิร์น
บ้านสไตล์โมเดิร์น
บ้านสไตล์โมเดิร์น
บ้านสไตล์โมเดิร์น
บ้านสไตล์โมเดิร์น
บ้านสไตล์โมเดิร์น
ห้องรับแขก ห้องนั่งเล่น
ห้องรับแขก ห้องนั่งเล่น
ห้องครัว เครื่องดูดควัน เคาน์เตอร์ครัว
พื้นไม้ขัดมัน พื้นปูนขัดมัน
พื้นไม้ขัดมัน พื้นปูนขัดมัน
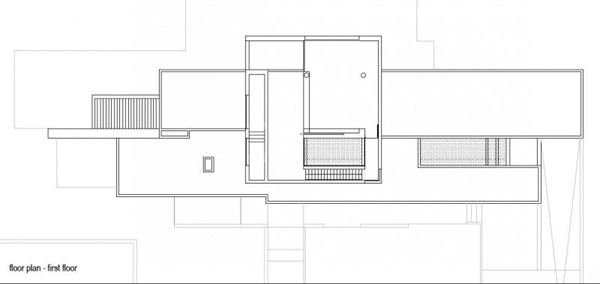
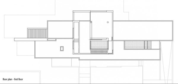
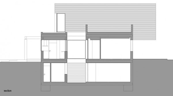
แปลนบ้าน
 
แปลนบ้าน
แปลนบ้าน
แปลนบ้าน
ขอบคุณข้อมูลและรูปภาพจาก:freshome.com
ติดตามข้อมูลดีๆ จาก Homedecorthai ได้ที่
www.homedecorthai.com
FB: www.facebook.com/HomeDecorThaiOfficial
IG:homedecorthai (www.instagram.com/homedecorthai)

แหล่งที่มา :
จำนวนคนอ่าน : 5515 คน

บทความที่ใกล้เคียงกัน : แบบบ้านสองชั้น

 

ไอเดียมาใหม่ใน"แบบบ้าน"

แบบบ้าน

บ้านไม้ชั้นเดียว ตกแต่งแบบเรียบง่าย

26 ธ.ค. 2560
บ้านไม้ชั้นเดียว ตกแต่งแบบเรียบง่าย

บ้านไม้ชั้นเดียว ออกแบบตกแต่งแบบเรียบง่าย หลังคาหน้าจั่วและกระจกบนใหญ่ พื้นที่การใช้งานภายในบ้านสะดวก ครบครันมีทั้งห้องครัว ห้องรับแขก ห้องทานอาหาร ห้องนังเล่น ซึ่งทั้งหมดเป็นพื้นที่เชื่อมต่อกัน การตกแต่งภายในเป็นแบบเรียบง่ายดูอบอุ่น    Read more

พาไปชม บ้านแห่งต้นไม้ ผสมผสานธรรมชาติเข้ากับพื้นที่อยู่อาศัยในสไตล์โมเดิร์นที่เรียบง่าย

13 ธ.ค. 2560
พาไปชม บ้านแห่งต้นไม้ ผสมผสานธรรมชาติเข้ากับพื้นที่อยู่อาศัยในสไตล์โมเดิร์นที่เรียบง่าย

    Read more

สวนเล็กๆ ก็สวยได้

20 ก.ย. 2560
สวนเล็กๆ ก็สวยได้

สวนเล็กๆ ก็สวยได้ ขนาดนั้นบางทีก็ไม่สำคัญเสมอไป ขึ้นอยู่กับความพอดี พอใจ ของแต่ละคน อย่าเพิ่งคิดไปไกลครับ วันนี้เราเอาตัวอย่างการจัดสวนแบบเล็กๆ น่ารักๆ มาฝากกันครับ    Read more

แบบบ้านสองชั้น สไตล์โมเดิร์น

20 ก.ย. 2560
แบบบ้านสองชั้น สไตล์โมเดิร์น

เป็นการออกแบบที่ดูสวยหรูเรียบง่าย ร่วมสมัย ภายตกแต่งผนังโดยการก่ออิฐ เน้นโชว์พื้นผิว พื้นที่รับประทานอาหารเชื่อมต่อกับห้องครัวและห้องนั่งเล่น เปิดโล่งถึงกันหมด ทำให้ดูกว้างขวาง และยังมีสระว่ายน้ำที่ล้อมรอบด้วยสีเขียวของสวนเพื่อเพิ่มความสดชื่นให้กับบ้านอีกด้วย    Read more

บ้านสไตล์วิลล่า

14 ก.ย. 2560
บ้านสไตล์วิลล่า

บ้านสไตล์วิลล่า ในแคลิฟอร์เนีย ออกแบบโดย Turnbull Griffin Haesloop เป็นความลงตัวที่สมบูรณ์แบบระหว่างในร่มและกลางแจ้ง ที่ออกแบบได้กลมกลืนกับบรรยากาศโดยรอบ พื้นท่่กลางแจ้งมีสระว่ายน้ำและสระน้ำตามธรรมชาติ ห้องนอน ห้องครัว และพื้นที่ต่างๆ อยู่ภายใต้หลังคาแบบยกลอย    Read more
  1   2 3 4 Next
Topics 1 - 5 of 105

ชมไอเดีย "แบบบ้าน" ทั้งหมด