ดิบๆ เรียบง่ายสไตล์โมเดิร์น
12 มี.ค. 2561
ไอเดียการแต่งบ้าน ตึกแถว ทาวน์เฮ้าส์ หรือคอนโด ใครชอบการแต่งบ้านแนวดิบๆ เรียบง่าย แต่แฝงไว้ด้วยความโมเดิร์นไม่ควรพลาดครับ
Read more
ติดหน้าต่างอลูมิเนียมให้บ้านผนังไม้
9 มี.ค. 2561
บ้านผนังไม้ ติดตั้งหน้าต่างแบบบานเลื่อนอลูมิเนียมสีขาว ก็ดูโมเดิร์น ดูเก๋ไปอีกแบบนะครับ ขอบคุณรูปภาพจาก โชคอนันต์ กระจก อลูมิเนียม
Read more
ตกแต่งภายในสไตล์ร่วมสมัย ส่วนผสมที่ลงตัวด้วยอิฐและสีขาว
28 ก.พ. 2561
ตกแต่งภายในสไตล์ร่วมสมัย ส่วนผสมที่ลงตัวด้วยอิฐและสีขาว คนชอบการตกแต่งภายในสไตล์ร่วมสมัยห้ามพลาด ไอเดียการตกแต่งภายในด้วยผนังอิฐที่ช่วยสร้างสีสันให้กับบ้านที่ถูกทาไว้ด้วยสีขาว จัดวางด้วยเฟอร์นิเจอร์สไตล์โมเดิร์นแบบเรียบๆ ยิ่งทำให้ภายในบ้านดูเงียบสงบและน่าอยู่มาก
Read more
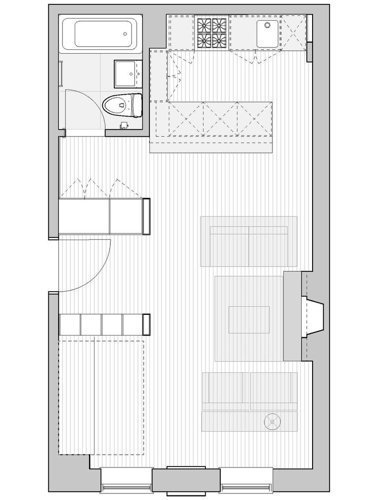
ตกแต่งคอนโดสไตล์โมเดิร์น สะดวกครบครันทุกฟังค์ชันการใช้งาน
26 ก.พ. 2561
ไอเดียตกแต่งคอนโดสไตล์โมเดิร์น สีเทาอ่อนภายในทำให้ห้องดูโปร่ง เลือกใช้เฟอร์นิเจอร์แบบอเนกประสงค์ เน้นประโยชน์การใช้งาน
Read more
แต่งห้องนอนสีชมพู
14 ก.พ. 2561
ใครกำลังคิดจะตกแต่งห้องนอนใหม่ และเป็นแฟนพันธุ์แท้สีชมพูอยู่แล้วละก็ รับรองว่าไอเดียแต่งห้องนอน set นี้ ต้องถูกใจคุณแน่ๆ ไปเลือกกันว่าชอบแบบไหน ขอบอกว่าสวยสุดทุกห้องเลย
Read more

















