/home/homedecor/domains/www1.homedecorthai.com/public_html/templates/default/ext/ui/article_detail.tpl.php ไอเดียบ้านกล่องหลังเล็ก สำหรับคู่รัก
 
 
    
   
     
     
   
 

ไอเดียบ้านกล่องหลังเล็กกำลังดี สำหรับคู่รัก

แบบบ้านสองชั้น

6 ก.ย. 2559
ไอเดียบ้านกล่องหลังเล็กกำลังดี สำหรับคู่รัก
บ้านสองชั้นสไตล์โมเดิร์นที่ดีไซน์เหมือนกล่องสี่เหลี่ยม มีพื้นที่ใช้สอยประมาณ 110 ตารางเมตร เป็นผลงานของ  Studio MAKS ภายในมีฟังค์ชันการใช้งานมากมายเช่น ตู้เสื้อผ้า ห้องนั่งเล่น ห้องครัว ห้องทำงาน ห้องนอนสองห้องชั้นบน หน้าต่างบานใหญ่บวกกับผนังสีขาวทำให้บ้านดูโปร่ง โล่ง สบาย ถ้าลองดัดแปลงมาปลูกเป็นเรือนหอขนาดเล็กๆ น่ารัก ก็คงน่าสนใจไม่น้อยเลย 
Photo:Christian Van der Kooy
บ้านสองชั้น สไตล์โมเดิร์น
ห้องครัว
ห้องนั่งเล่น
ไอเดียบ้านกล่อง
ไอเดียบ้านหลังเล็ก
พื้นที่หลังบ้าน
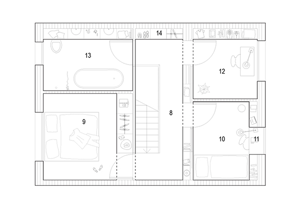
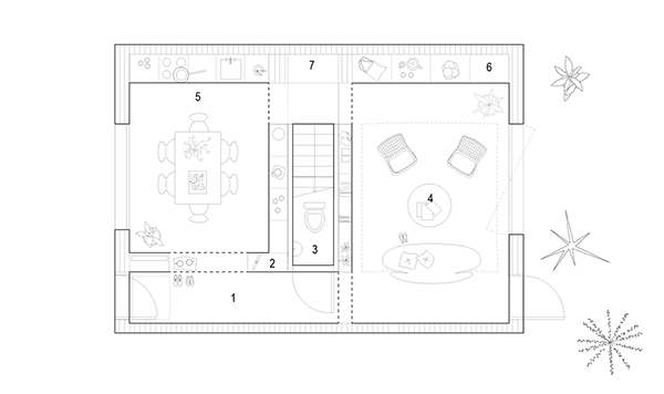
แปลนบ้านชั้นล่าง
แปลนบ้านชั้นบน
ติดตามข้อมูลดีๆ จาก Homedecorthai ได้ที่
www.homedecorthai.com
FB: www.facebook.com/HomeDecorThaiOfficial
IG:homedecorthai (www.instagram.com/homedecorthai)
;
 

 


แหล่งที่มา : freshome.com
จำนวนคนอ่าน : 6659 คน

บทความที่ใกล้เคียงกัน : แบบบ้านสองชั้น

 

ไอเดียมาใหม่ใน"แบบบ้าน"

แบบบ้าน

บ้านไม้ชั้นเดียว ตกแต่งแบบเรียบง่าย

26 ธ.ค. 2560
บ้านไม้ชั้นเดียว ตกแต่งแบบเรียบง่าย

บ้านไม้ชั้นเดียว ออกแบบตกแต่งแบบเรียบง่าย หลังคาหน้าจั่วและกระจกบนใหญ่ พื้นที่การใช้งานภายในบ้านสะดวก ครบครันมีทั้งห้องครัว ห้องรับแขก ห้องทานอาหาร ห้องนังเล่น ซึ่งทั้งหมดเป็นพื้นที่เชื่อมต่อกัน การตกแต่งภายในเป็นแบบเรียบง่ายดูอบอุ่น    Read more

พาไปชม บ้านแห่งต้นไม้ ผสมผสานธรรมชาติเข้ากับพื้นที่อยู่อาศัยในสไตล์โมเดิร์นที่เรียบง่าย

13 ธ.ค. 2560
พาไปชม บ้านแห่งต้นไม้ ผสมผสานธรรมชาติเข้ากับพื้นที่อยู่อาศัยในสไตล์โมเดิร์นที่เรียบง่าย

    Read more

สวนเล็กๆ ก็สวยได้

20 ก.ย. 2560
สวนเล็กๆ ก็สวยได้

สวนเล็กๆ ก็สวยได้ ขนาดนั้นบางทีก็ไม่สำคัญเสมอไป ขึ้นอยู่กับความพอดี พอใจ ของแต่ละคน อย่าเพิ่งคิดไปไกลครับ วันนี้เราเอาตัวอย่างการจัดสวนแบบเล็กๆ น่ารักๆ มาฝากกันครับ    Read more

แบบบ้านสองชั้น สไตล์โมเดิร์น

20 ก.ย. 2560
แบบบ้านสองชั้น สไตล์โมเดิร์น

เป็นการออกแบบที่ดูสวยหรูเรียบง่าย ร่วมสมัย ภายตกแต่งผนังโดยการก่ออิฐ เน้นโชว์พื้นผิว พื้นที่รับประทานอาหารเชื่อมต่อกับห้องครัวและห้องนั่งเล่น เปิดโล่งถึงกันหมด ทำให้ดูกว้างขวาง และยังมีสระว่ายน้ำที่ล้อมรอบด้วยสีเขียวของสวนเพื่อเพิ่มความสดชื่นให้กับบ้านอีกด้วย    Read more

บ้านสไตล์วิลล่า

14 ก.ย. 2560
บ้านสไตล์วิลล่า

บ้านสไตล์วิลล่า ในแคลิฟอร์เนีย ออกแบบโดย Turnbull Griffin Haesloop เป็นความลงตัวที่สมบูรณ์แบบระหว่างในร่มและกลางแจ้ง ที่ออกแบบได้กลมกลืนกับบรรยากาศโดยรอบ พื้นท่่กลางแจ้งมีสระว่ายน้ำและสระน้ำตามธรรมชาติ ห้องนอน ห้องครัว และพื้นที่ต่างๆ อยู่ภายใต้หลังคาแบบยกลอย    Read more
  1   2 3 4 Next
Topics 1 - 5 of 105

ชมไอเดีย "แบบบ้าน" ทั้งหมด