/home/homedecor/domains/www1.homedecorthai.com/public_html/templates/default/ext/ui/article_detail.tpl.php แบบบ้านไม้ชั้นเดียว ท่ามกลาง ท้องฟ้า ทะเลและขุนเขา
 
 
    
   
     
     
   
 

แบบบ้านไม้ชั้นเดียว ท่ามกลาง ท้องฟ้า ทะเลและขุนเขา

แบบบ้านชั้นเดียว

31 ก.ค. 2559
แบบบ้านไม้ชั้นเดียว ท่ามกลาง ท้องฟ้า ทะเลและทิวเขา
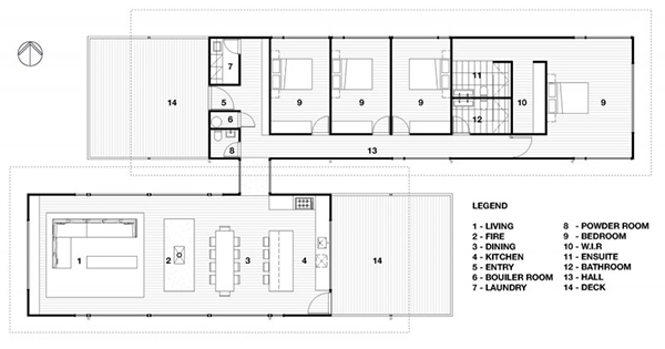
     วันนี้ homedecorthai ขอนำเสนอไอเดียบ้านไม้ชั้นเดียวอันแสนอบอุ่นและงดงาม ท่ามกลางทิวทัศน์ที่เป็นธรรมชาติตั้งอยู่บนภูเขาติดกับทะเล ออกแบบโดย Ron Kennon ออกแบบให้เรียบง่าย ให้ความโปร่งใสโดยใช้กระจกบานใหญ่เอาไว้ชมภูมิทัศน์รอบๆ บ้านที่สวยงาม มองเห็นทั้งท้องทะเลและทุ่งหญ้าอันสวยงาม กับเสียงของธรรมชาติที่รายล้อมตัวบ้าน นับว่าเป็นบ้านที่น่าอยู่มากๆ เลยทีเดียวครับ
บ้านชายทะเล
บ้านใกล้ทะเล
บ้านไม้
บ้านไม้ชั้นเดียว
ธรรมชาติภูเขา ทะเล
านไม้ชั้นเดียว
แบบห้องนอนติดกระจก
บ้านไม้ธรรมชาติ
ออกแบบตกแต่งภายใน
พื้นไม้
ตกแต่งห้องนั่งเล่น
ตกแต่งห้องครัว
ตู้ไม้
ตกแต่งห้องนอน
บ้านกลางธรรมชาติ
แบบบ้าน
แปลนบ้าน
แบบแปลนบ้าน

ติดตามข้อมูลดีๆ จาก Homedecorthai ได้ที่

FB: www.facebook.com/HomeDecorThaiOfficial

IG:homedecorthai (www.instagram.com/homedecorthai)


แหล่งที่มา : freshome.com
จำนวนคนอ่าน : 6794 คน

บทความที่ใกล้เคียงกัน : แบบบ้านชั้นเดียว

 

ไอเดียมาใหม่ใน"แบบบ้าน"

แบบบ้าน

บ้านไม้ชั้นเดียว ตกแต่งแบบเรียบง่าย

26 ธ.ค. 2560
บ้านไม้ชั้นเดียว ตกแต่งแบบเรียบง่าย

บ้านไม้ชั้นเดียว ออกแบบตกแต่งแบบเรียบง่าย หลังคาหน้าจั่วและกระจกบนใหญ่ พื้นที่การใช้งานภายในบ้านสะดวก ครบครันมีทั้งห้องครัว ห้องรับแขก ห้องทานอาหาร ห้องนังเล่น ซึ่งทั้งหมดเป็นพื้นที่เชื่อมต่อกัน การตกแต่งภายในเป็นแบบเรียบง่ายดูอบอุ่น    Read more

พาไปชม บ้านแห่งต้นไม้ ผสมผสานธรรมชาติเข้ากับพื้นที่อยู่อาศัยในสไตล์โมเดิร์นที่เรียบง่าย

13 ธ.ค. 2560
พาไปชม บ้านแห่งต้นไม้ ผสมผสานธรรมชาติเข้ากับพื้นที่อยู่อาศัยในสไตล์โมเดิร์นที่เรียบง่าย

    Read more

สวนเล็กๆ ก็สวยได้

20 ก.ย. 2560
สวนเล็กๆ ก็สวยได้

สวนเล็กๆ ก็สวยได้ ขนาดนั้นบางทีก็ไม่สำคัญเสมอไป ขึ้นอยู่กับความพอดี พอใจ ของแต่ละคน อย่าเพิ่งคิดไปไกลครับ วันนี้เราเอาตัวอย่างการจัดสวนแบบเล็กๆ น่ารักๆ มาฝากกันครับ    Read more

แบบบ้านสองชั้น สไตล์โมเดิร์น

20 ก.ย. 2560
แบบบ้านสองชั้น สไตล์โมเดิร์น

เป็นการออกแบบที่ดูสวยหรูเรียบง่าย ร่วมสมัย ภายตกแต่งผนังโดยการก่ออิฐ เน้นโชว์พื้นผิว พื้นที่รับประทานอาหารเชื่อมต่อกับห้องครัวและห้องนั่งเล่น เปิดโล่งถึงกันหมด ทำให้ดูกว้างขวาง และยังมีสระว่ายน้ำที่ล้อมรอบด้วยสีเขียวของสวนเพื่อเพิ่มความสดชื่นให้กับบ้านอีกด้วย    Read more

บ้านสไตล์วิลล่า

14 ก.ย. 2560
บ้านสไตล์วิลล่า

บ้านสไตล์วิลล่า ในแคลิฟอร์เนีย ออกแบบโดย Turnbull Griffin Haesloop เป็นความลงตัวที่สมบูรณ์แบบระหว่างในร่มและกลางแจ้ง ที่ออกแบบได้กลมกลืนกับบรรยากาศโดยรอบ พื้นท่่กลางแจ้งมีสระว่ายน้ำและสระน้ำตามธรรมชาติ ห้องนอน ห้องครัว และพื้นที่ต่างๆ อยู่ภายใต้หลังคาแบบยกลอย    Read more
  1   2 3 4 Next
Topics 1 - 5 of 105

ชมไอเดีย "แบบบ้าน" ทั้งหมด