/home/homedecor/domains/www1.homedecorthai.com/public_html/templates/default/ext/ui/article_detail.tpl.php แบบบ้าน แนวเมดิเตอร์เรเนียน บ้านสีขาว ทะเลสีฟ้าคราม สุดลงตัว
 
 
    
   
     
     
   
 

แบบบ้าน สไตล์เมดิเตอร์เรเนียน บ้านสีขาว ทะเลสีฟ้าคราม สุดลงตัว

บ้านสไตล์เมดิเตอร์เรเนียน

9 ก.ย. 2557

แบบบ้าน สไตล์เมดิเตอร์เรเนียน บ้านสีขาว ทะเลสีฟ้าคราม สุดลงตัว

 
      แบบบ้านพักอันเงียบสงบ กว้างขวาง สะดวกสบายหลังนี้ถูกตกแต่งภายในไว้อย่างสวยงาม สไตล์เมดิเตอร์เรเนียนผสานกับงานดีไซน์เรียบทันสมัย ได้อย่างหน้ามองลงตัว ตั้งอยู่บนเกาะมายอร์ก้า,สเปน รอบๆ บ้าน ถูกดีไซน์ให้เปิดกว้าง มีพื้นที่โล่งในการทำกิจกรรมกลางแจ้ง เหมาะกับสภาพภูมิประเทศที่เป็นเกาะ ทะเล และหาดทราย
 
 
 

              สถาปัตยกรรมโดยรวมของบ้านก็คือการผสมผสานที่ดีของความร่วมสมัยที่มีความหมาย Midcentury (ไม้และโลหะมีบทบาทสำคัญในการตกแต่งภายใน)  ทั้งนี้ส่วนที่ดีที่สุดของบ้านคือการเปิดมุมมองที่สวยงามของชายฝั่งทะเลเมดิเตอร์เรเนียนที่มีหาดทรายและน้ำทะเลสีฟ้าคราม

 

            ภายนอกบ้านตกแต่งด้วยสนามหญ้าและสวนต้นไม้ ให้ความรู้สึก โปร่ง โล่งสบาย แต่มีความชุ่มชื่นของสีเขียวตัดกับตัวบ้านที่สีขาว

           ชั้น 2 ของบ้านทำพื้นที่ปิดโล่ง ระเบียงกว้างให้เห็นวิวทะเลที่สวยงาม ใส่ลูกเล่นโครงปูรูปเว้าโค้งตามตัวบ้าน เป็นแนวคิดการดีไซน์ที่ลงตัว

 
 
 

          ส่วนชั้นล่าง ทำระเบียงยื่นด้านนอกเปิดโล่งให้เห็นวิวของสระน้ำตัดกับวิวขอบฟ้าและทะเลในมุมไกล เป็นจุดพักผ่อนอีกจุดในบ้านที่น่าสนใจ

          ด้านในตัวบ้านมีการตกแต่งสไตล์โมเดิร์นร่วมสมัย เฟอร์นิเจอร์ส่วนใหญ่เป็นสีขาว ห้องนั่งเล่นเชื่อมกับห้องอาหารที่เปิดโล่ง ทำให้พื้นที่ดูกว้างขึ้นอย่างเห็นได้ชัด

 

ห้องนอนใหญ่ของบ้านยังคงตกแต่งด้วยเฟอร์นิเจอร์ส่วนใหญ่ที่เป็นสีขาว เรียบง่าย ทำให้ห้องดูโล่งสบาย น่าพักผ่อน หน้าต่างเป็นกระจกบานใหญ่เปิดวิวทะเลให้สามารถสัมผัสกับบรรยากาศรอบบ้านได้เติมที่

 
 

ห้องน้ำก็ออกแบบสไตล์โมเดิร์น สุขภัณฑ์ในห้องน้ำที่เลือกยังคงเป็นสีขาว ดูสะอาด เน้นการใช้งาน

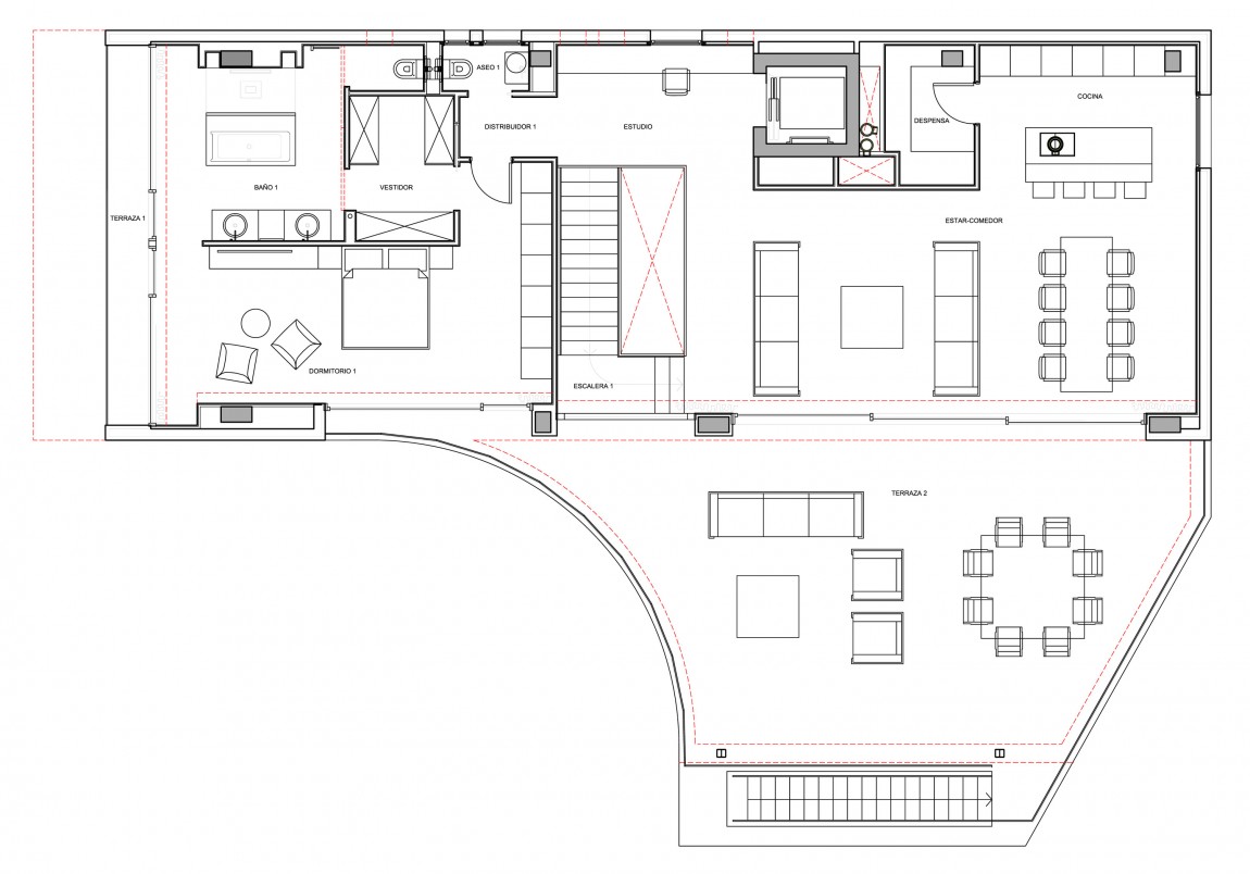
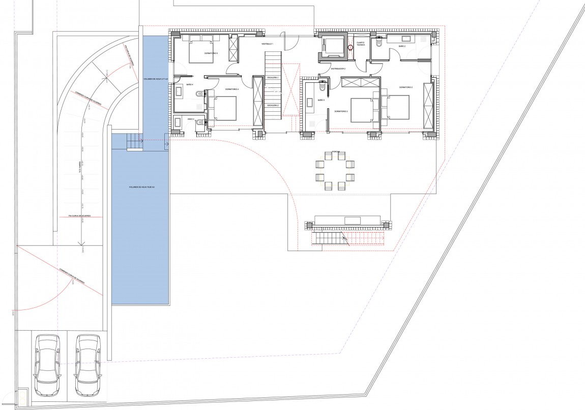
แบบแปลนบ้าน (บ้านแนวเมดิเตอร์เรเนียน)

 

 

 

 

 

 

 


จำนวนคนอ่าน : 15474 คน
 

ไอเดียมาใหม่ใน"แบบบ้าน"

แบบบ้าน

บ้านไม้ชั้นเดียว ตกแต่งแบบเรียบง่าย

26 ธ.ค. 2560
บ้านไม้ชั้นเดียว ตกแต่งแบบเรียบง่าย

บ้านไม้ชั้นเดียว ออกแบบตกแต่งแบบเรียบง่าย หลังคาหน้าจั่วและกระจกบนใหญ่ พื้นที่การใช้งานภายในบ้านสะดวก ครบครันมีทั้งห้องครัว ห้องรับแขก ห้องทานอาหาร ห้องนังเล่น ซึ่งทั้งหมดเป็นพื้นที่เชื่อมต่อกัน การตกแต่งภายในเป็นแบบเรียบง่ายดูอบอุ่น    Read more

พาไปชม บ้านแห่งต้นไม้ ผสมผสานธรรมชาติเข้ากับพื้นที่อยู่อาศัยในสไตล์โมเดิร์นที่เรียบง่าย

13 ธ.ค. 2560
พาไปชม บ้านแห่งต้นไม้ ผสมผสานธรรมชาติเข้ากับพื้นที่อยู่อาศัยในสไตล์โมเดิร์นที่เรียบง่าย

    Read more

สวนเล็กๆ ก็สวยได้

20 ก.ย. 2560
สวนเล็กๆ ก็สวยได้

สวนเล็กๆ ก็สวยได้ ขนาดนั้นบางทีก็ไม่สำคัญเสมอไป ขึ้นอยู่กับความพอดี พอใจ ของแต่ละคน อย่าเพิ่งคิดไปไกลครับ วันนี้เราเอาตัวอย่างการจัดสวนแบบเล็กๆ น่ารักๆ มาฝากกันครับ    Read more

แบบบ้านสองชั้น สไตล์โมเดิร์น

20 ก.ย. 2560
แบบบ้านสองชั้น สไตล์โมเดิร์น

เป็นการออกแบบที่ดูสวยหรูเรียบง่าย ร่วมสมัย ภายตกแต่งผนังโดยการก่ออิฐ เน้นโชว์พื้นผิว พื้นที่รับประทานอาหารเชื่อมต่อกับห้องครัวและห้องนั่งเล่น เปิดโล่งถึงกันหมด ทำให้ดูกว้างขวาง และยังมีสระว่ายน้ำที่ล้อมรอบด้วยสีเขียวของสวนเพื่อเพิ่มความสดชื่นให้กับบ้านอีกด้วย    Read more

บ้านสไตล์วิลล่า

14 ก.ย. 2560
บ้านสไตล์วิลล่า

บ้านสไตล์วิลล่า ในแคลิฟอร์เนีย ออกแบบโดย Turnbull Griffin Haesloop เป็นความลงตัวที่สมบูรณ์แบบระหว่างในร่มและกลางแจ้ง ที่ออกแบบได้กลมกลืนกับบรรยากาศโดยรอบ พื้นท่่กลางแจ้งมีสระว่ายน้ำและสระน้ำตามธรรมชาติ ห้องนอน ห้องครัว และพื้นที่ต่างๆ อยู่ภายใต้หลังคาแบบยกลอย    Read more
  1   2 3 4 Next
Topics 1 - 5 of 105

ชมไอเดีย "แบบบ้าน" ทั้งหมด