/home/homedecor/domains/www1.homedecorthai.com/public_html/templates/default/ext/ui/article_detail.tpl.php แบบบ้านลอยน้ำของกรมโยธาธิการ
 
 
    
   
     
     
   
 

แบบบ้านลอยน้ำของกรมโยธาธิการ

แบบบ้าน

22 เม.ย. 2558

      จากภาวะน้ำท่วมที่เกิดขึ้นในหลายพื้นที่ของประเทศไทย ได้ก่อให้เกิดความเสียหายเป็นอย่างมากทั้งต่อชีวิตและทรัพย์สินของผู้ประสบภัย   กรมโยธาธิการและผังเมืองซึ่งมีภารกิจหลักประการหนึ่งคือการให้บริการแบบบ้านเพื่อประชาชนที่มีอยู่อย่างหลากหลาย  รูปแบบในระดับราคาต่างๆ กันได้เล็งเห็นถึงความสำคัญของบ้านที่จะสามารถป้องกันภัย ดังกล่าวได้ จึงได้เริ่มทำการศึกษาเพื่อการออกแบบ จากแหล่งต่างๆ ทั้งจากในและต่างประเทศ โดยเฉพาะอย่างยิ่งที่บ้านท่าขนอน อำเภอกาญจนดิษฐ์ จังหวัดสุราษฎร์ธานี ซึ่งยังมีบ้านลอยน้ำ ภูมิปัญญาชาวบ้าน ได้รับการอนุรักษ์ไว้ในพื้นที่ 


        27 กันยายน พ.ศ. 2550 สมเด็จพระเทพรัตนราชสุดาฯ สยามบรมราชกุมารี ได้เสด็จมายังกรมโยธาธิการและผังเมือง เพื่อทรงเปิดพระอนุสาวรีย์สมเด็จพระเจ้าบรมวงศ์เธอเจ้าฟ้ากรมพระยานริศรานุวัดติวงศ์ เมื่อได้ทอดพระเนตรนิทรรศการแบบบ้านเพื่อประชาชนของกรมฯ แล้วได้พระราชทานพระราชดำริเกี่ยวกับ “บ้านลอยน้ำ” 

      กรมโยธาธิการและผังเมืองจึงได้ออกแบบบ้านหลังนี้ขึ้นโดยปรับใช้แนวคิดจาก “บ้านลอยน้ำท่าขนอน” และเรือนแพของชาวบ้านในอดีต นำมาประยุกต์ใช้กับสภาพแวดล้อมในปัจจุบัน ซึ่งในฤดูแล้งตัวบ้านจะตั้งอยู่บนพื้นดินตามปกติ แต่เมื่อมีน้ำท่วมก็จะลอยขึ้น   ตามระดับน้ำได้ โดยจะมีการยึดตัวบ้านไว้กับเสาหลักทั้งที่มุมเพื่อป้องกันการโคลงตัว หรือลอยไปตามกระแสน้ำ และเมื่อระดับน้ำลดลง  ตัวบ้านก็จะกลับมาตั้งอยู่บนพื้นดินตามเดิม 
 

ขนาดของบ้านลอยน้ำที่ได้ออกแบบขึ้นนี้ตั้งอยู่บนพื้นฐานของขนาดวัสดุสำเร็จรูปที่มีขายอยู่ทั่วไปในท้องตลาด เพื่อให้เป็นการใช้วัสดุที่คุ้มค่าที่สุดเท่าที่จะทำได้ซึ่งสามารถประยุกต์ใช้และทำการก่อสร้างได้ง่าย เนื่องจากมีระบบวิศวกรรมโครงสร้างเป็นรูปแบบอย่างง่าย ชาวบ้านที่มีความรู้ด้านช่างในระดับทั่วไปก็จะสามารถดำเนินการก่อสร้างได้เอง 

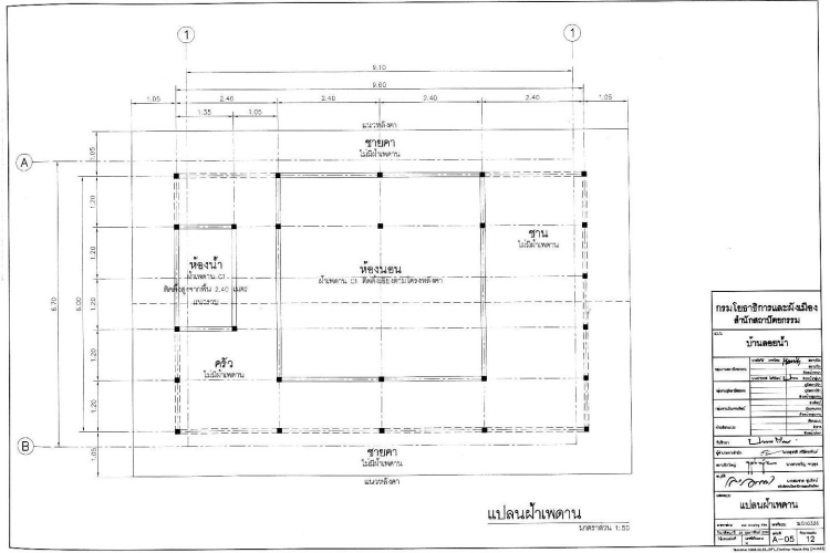
บ้านหลังนี้มีขนาดพื้นที่รวมประมาณ 60 ตารางเมตร ซึ่งเป็นขนาดที่ไม่ใหญ่มาก เพื่อความสะดวกในการก่อสร้าง และการลอยน้ำ แต่หากมีความต้องการพื้นที่เพิ่มขึ้นก็อาจเชื่อมต่อหลายหลังเข้าด้วยกัน โดยใช้สะพานทางเชื่อมพาดระหว่างชานรอบตัวบ้าน 

สำหรับราคาค่าก่อสร้างประมาณการได้ว่ากรณีดำเนินการก่อสร้างเองจะมีราคาประมาณหลังละ 719,000 บาท หากจ้างเหมา  ราคาประมาณหลังละ 915,000 บาท เนื่องจากต้องมีการคิดค่าดำเนินการกำไรและภาษีด้วย 

แบบบ้านลอยน้ำของกรมโยธาธิการและผังเมืองนี้ น่าจะเป็นแนวทางหนึ่งที่จะช่วยบรรเทาความเดือดร้อนของประชาชนที่ต้อง  อยู่อาศัยในพื้นที่ที่อาจต้องประสบภัยน้ำท่วมตามฤดูกาลได้เป็นอย่างดี โดยเฉพาะอย่างยิ่งผู้อยู่อาศัยในบริเวณเที่เป็นที่ลุ่ม โดยอาจปรับปรุง   เปลี่ยนแปลงรูปแบบและพื้นที่ใช้สอยให้มีความเหมาะสมและสอดคล้องตามความต้องการที่แท้จริงของตนเองต่อไป

 

แนวคิด  ออกแบบขึ้นโดยแนวคิดเพื่อป้องกันความเสียหายจากอุทกภัย ตามฤดูกาล และตั้งอยู่บนพื้นดินในภาวะปกติ โดยให้บ้านทั้งหลัง   สามารถลอยสูงขึ้นได้ตามระดับน้ำที่เพิ่มสูงขึ้นอย่างไร ก็ตามบ้านลอยน้ำนี้ไม่เหมาะกับพื้นที่ที่มีน้ำไหลเชี่ยวกรากรุนแรง 
     
ขนาดพื้นที่ ประมาณ 60 ตารางเมตรประกอบด้วยพื้นที่อยู่อาศัย 23 ตารางเมตร ส่วนทำอาหารห้องน้ำและซักล้าง รวม 37 ตารางเมตร 

ราคาค่าก่อสร้าง โดยประมาณ 719,000 บาท (กรณีปลูกสร้างเอง) ไม่ต้องใช้ผู้รับจ้างเหมาและประมาณ 915,000 บาท (กรณีมีผู้รับจ้างเหมา) 

วัสดุก่อสร้าง ใช้วัสดุก่อสร้างพื้นฐานทั่วไปที่สามารถหาได้ง่ายในท้องตลาด ซึ่งสามารถดัดแปลงได้ตามความเหมาะสมกับแต่ละพื้นที่ทุ่นลอยเป็น  ถังน้ำมันขนาด 200 ลิตร หรือถังไฟเบอร์กลาสกรณีต้องการความทนทานเพิ่มขึ้น 

ระบบสุขาภิบาล ใช้ระบบการย่อยสลายโดยมีถังบรรจุจุลินทรีย์ EM ติดตั้งอยู่ใต้ห้องน้ำเพื่อย่อยสลายและเร่งการตกตะกอนของสิ่งปฎิกูล

 


แหล่งที่มา :
จำนวนคนอ่าน : 37065 คน

บทความที่ใกล้เคียงกัน : แบบบ้าน, แบบบ้านชั้นเดียว

 

ไอเดียมาใหม่ใน"แบบบ้าน"

แบบบ้าน

บ้านไม้ชั้นเดียว ตกแต่งแบบเรียบง่าย

26 ธ.ค. 2560
บ้านไม้ชั้นเดียว ตกแต่งแบบเรียบง่าย

บ้านไม้ชั้นเดียว ออกแบบตกแต่งแบบเรียบง่าย หลังคาหน้าจั่วและกระจกบนใหญ่ พื้นที่การใช้งานภายในบ้านสะดวก ครบครันมีทั้งห้องครัว ห้องรับแขก ห้องทานอาหาร ห้องนังเล่น ซึ่งทั้งหมดเป็นพื้นที่เชื่อมต่อกัน การตกแต่งภายในเป็นแบบเรียบง่ายดูอบอุ่น    Read more

พาไปชม บ้านแห่งต้นไม้ ผสมผสานธรรมชาติเข้ากับพื้นที่อยู่อาศัยในสไตล์โมเดิร์นที่เรียบง่าย

13 ธ.ค. 2560
พาไปชม บ้านแห่งต้นไม้ ผสมผสานธรรมชาติเข้ากับพื้นที่อยู่อาศัยในสไตล์โมเดิร์นที่เรียบง่าย

    Read more

สวนเล็กๆ ก็สวยได้

20 ก.ย. 2560
สวนเล็กๆ ก็สวยได้

สวนเล็กๆ ก็สวยได้ ขนาดนั้นบางทีก็ไม่สำคัญเสมอไป ขึ้นอยู่กับความพอดี พอใจ ของแต่ละคน อย่าเพิ่งคิดไปไกลครับ วันนี้เราเอาตัวอย่างการจัดสวนแบบเล็กๆ น่ารักๆ มาฝากกันครับ    Read more

แบบบ้านสองชั้น สไตล์โมเดิร์น

20 ก.ย. 2560
แบบบ้านสองชั้น สไตล์โมเดิร์น

เป็นการออกแบบที่ดูสวยหรูเรียบง่าย ร่วมสมัย ภายตกแต่งผนังโดยการก่ออิฐ เน้นโชว์พื้นผิว พื้นที่รับประทานอาหารเชื่อมต่อกับห้องครัวและห้องนั่งเล่น เปิดโล่งถึงกันหมด ทำให้ดูกว้างขวาง และยังมีสระว่ายน้ำที่ล้อมรอบด้วยสีเขียวของสวนเพื่อเพิ่มความสดชื่นให้กับบ้านอีกด้วย    Read more

บ้านสไตล์วิลล่า

14 ก.ย. 2560
บ้านสไตล์วิลล่า

บ้านสไตล์วิลล่า ในแคลิฟอร์เนีย ออกแบบโดย Turnbull Griffin Haesloop เป็นความลงตัวที่สมบูรณ์แบบระหว่างในร่มและกลางแจ้ง ที่ออกแบบได้กลมกลืนกับบรรยากาศโดยรอบ พื้นท่่กลางแจ้งมีสระว่ายน้ำและสระน้ำตามธรรมชาติ ห้องนอน ห้องครัว และพื้นที่ต่างๆ อยู่ภายใต้หลังคาแบบยกลอย    Read more
  1   2 3 4 Next
Topics 1 - 5 of 105

ชมไอเดีย "แบบบ้าน" ทั้งหมด